
会議室レイアウトの選び方に迷っていませんか?スクール形式・シアター形式・ロの字形式・コの字形式・島型形式など、セミナーや会議で使える代表的な配置の特徴と用途をわかりやすく解説。TKP会議室での実際の利用例も紹介し、目的別に最適なレイアウトがすぐわかります。
本記事では、会議室でよく利用される代表的な机レイアウトの名称・特徴・主な用途をわかりやすく解説します。
「会議室 レイアウト」「セミナー 机 必要?」なんて調べるのはもう終わり。
イベントの成果を高めるためにも、レイアウト選びを一緒に見直してみましょう。
| 収容人数 | コミュニケーション | 討議・ 意思決定 | 情報伝達 | |
|---|---|---|---|---|
| スクール | ○ | × | △ | ◎ |
| シアター | ◎ | × | × | ◎ |
| ロの字 | × | ○ | ◎ | ○ |
| コの字 | × | △ | ◎ | ○ |
| 島型 | △ | ◎ | ○ | △ |
| メリット | デメリット |
|---|---|
| ・少人数~大人数まで対応可能 ・登壇者に視線が集まり、 集中力を維持しやすい ・プロジェクターや映像投影を活用しやすい ・ノートやPC作業、資料配布がしやすい |
・参加者同士のコミュニケーションが生まれにくい ・発言の心理的ハードルがやや高い |
(利用会場:TKPガーデンシティPREMIUM品川・ホール5A)| メリット | デメリット |
|---|---|
| ・同じ広さの会議室でもスクール形式より多くの参加者を収容できる ・短時間イベントに最適 ・机がないため着席・退出がしやすく、複数会場を回遊するイベントにも適している |
・机がないため、資料の記入やPC作業、昼食を挟むイベントには不向き ・長時間のセミナーでは疲れやすい ・グループワークや双方向の議論には適さない ・荷物の置き場への配慮が必要 |
(利用会場:TKP市ヶ谷カンファレンスセンター・ホール7A)| メリット | デメリット |
|---|---|
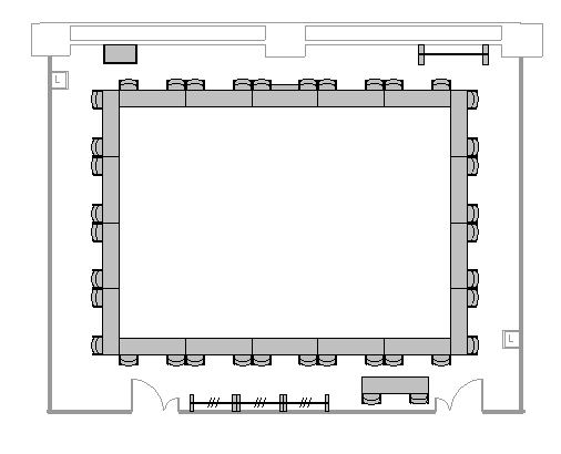
| ・発言する雰囲気をつくりやすい ・全員の顔が見えるため意思疎通が円滑になる ・意思決定や合意形成がしやすい | ・中心に空間があるため、収容人数は少なめになる ・各人の手元に資料を用意する必要があり、全員で同じものを見ることができない |
(利用会場:TKPガーデンシティPREMIUM品川高輪口・カンファレンスルーム3D)| メリット | デメリット |
|---|---|
| ・講師が中央や内側を自由に動きやすい ・参加者同士の意見交換がしやすい ・プロジェクターや映像投影を活用しやすい ・説明と質疑応答をスムーズに切り替えられる | ・ロの字同様に収容人数はやや少なめ ・会場の広さによっては発言に偏りが出ることがある |
(利用会場:TKPガーデンシティPREMIUM岡山・バンケット4B)| メリット | デメリット |
|---|---|
| ・参加者同士のコミュニケーションを促進できる ・アイデア創出や課題解決型の議論に適している ・主体性を引き出しやすい ・発言機会が均等になりやすい |
・全体への情報共有には工夫が必要 ・スクリーンが見えにくい席が出る場合がある ・収容人数はやや少なめになる ・会場設営に時間がかかることがある |
(利用会場:TKP心斎橋駅前カンファレンスセンター・カンファレンスルーム3A)会議室のレイアウトは、イベントの成果を左右する「戦略設計」の一部であることがお分かりいただけたでしょうか。
目的に合わせて最適なレイアウトを選ぶことが、会議やイベントの質を高める第一歩です。
さらに、シアター形式や上記以外のレイアウトについても、内容に応じて柔軟に対応しております(一部有料)。
初めてでも失敗しない会議室レイアウト! スクール/シアター/ロの字/コの字/島型形式を用途別に解説
会議室レイアウトの選び方に迷っていませんか?スクール形式・シアター形式・ロの字形式・コの字形式・島型形式など、セミナーや会議で使える代表的な配置の特徴と用途をわかりやすく解説。TKP会議室での実際の利用例も紹介し、目的別に最適なレイアウトがすぐわかります。

【内覧会レポート】ガーデンシティPREMIUM東京駅大手町がオープンしました
2月25日に新施設「TKPガーデンシティPREMIUM東京駅大手町がオープンしました。今回は、2月27日に行われた内覧会の様子をお届けします。

【内覧会レポート】横浜に貸会議室が新規オープン!TKPみなとみらいカンファレンスセンター
11月25日に新施設「TKPみなとみらいカンファレンスセンター」がグランドオープンしました。今回は同日に行われたレセプション&内覧会の様子をお届けします。

会議室不足を解消!快適な作業環境を整える会議ブース活用術
「会議室がいつも埋まっていて予約できない…」「オンライン会議の音が気になって集中できない…」 オフィス回帰が進む今、こうした悩みを抱えていませんか?

初めてでも失敗しない会議室レイアウト! スクール/シアター/ロの字/コの字/島型形式を用途別に解説
会議室レイアウトの選び方に迷っていませんか?スクール形式・シアター形式・ロの字形式・コの字形式・島型形式など、セミナーや会議で使える代表的な配置の特徴と用途をわかりやすく解説。TKP会議室での実際の利用例も紹介し、目的別に最適なレイアウトがすぐわかります。

【内覧会レポート】ガーデンシティPREMIUM東京駅大手町がオープンしました
2月25日に新施設「TKPガーデンシティPREMIUM東京駅大手町がオープンしました。今回は、2月27日に行われた内覧会の様子をお届けします。

【内覧会レポート】横浜に貸会議室が新規オープン!TKPみなとみらいカンファレンスセンター
11月25日に新施設「TKPみなとみらいカンファレンスセンター」がグランドオープンしました。今回は同日に行われたレセプション&内覧会の様子をお届けします。

会議室不足を解消!快適な作業環境を整える会議ブース活用術
「会議室がいつも埋まっていて予約できない…」「オンライン会議の音が気になって集中できない…」 オフィス回帰が進む今、こうした悩みを抱えていませんか?

(1営業日以内に返答)
(9:00~18:00/年中無休)