TKPグループ
貸会議室ネット
宿泊施設
パーティー・懇親会
イベント企画・運営
備品レンタル
ウェビナーサポート
短期オフィス
研修施設
TKPのサービス一覧
初めての方へ
会場を探す
検索
検討リスト
閲覧履歴
よくあるご質問
03-4577-9260
9:00-18:00/年中無休
予約・問い合わせ
TKP貸会議室ネット
ご利用事例
【東京】幹部会議&懇親会(全3回/参加者20~30名)
【東京】幹部会議&懇親会(全3回/参加者20~30名)
事例詳細
ご利用目的
会議・ミーティング、パーティー・懇親会・二次会
開催時期
2023年7月
ご利用サービス
会場手配、懇親会手配
開催方法
リアルイベント
ご利用会場
TKPガーデンシティPREMIUM東京駅丸の内中央 、TKP東京駅カンファレンスセンター
参加者
20名~30名 × 3回
ご利用内容
【開催するに至った経緯】 コロナ禍で長らく開催を見送っていた幹部会議を連続開催することになった。場所は東京駅周辺。全3回開催で参加者は各回変わるため、会議の後に親睦を深めるための懇親会も開きたい。 【お客様の感想】 希望通り東京駅前の会場にて、会議と懇親会が同一の場所で実施できたのが良かった。 毎週連続開催していくと会の運営も慣れてスムーズになり、会議や懇親会がマンネリ化しないような工夫を取り入れ、改善に活かせたのも良かった。
TKP会場でのパーティーはメリットがいっぱい
専用施設でお好みの演出を!大切なお客様のおもてなしや、少数の宴会から大型イベントまで。会場の手配や後片付けなど面倒な作業はすべておまかせ。基本プランからお客様だけの特別プランまで柔軟にご用意いたします。
利用風景
懇親会の様子
懇親会の様子
懇親会の様子
懇親会会場イメージ(東京駅前)
懇親会会場イメージ(丸の内)
バーカウンター
会場セッティング
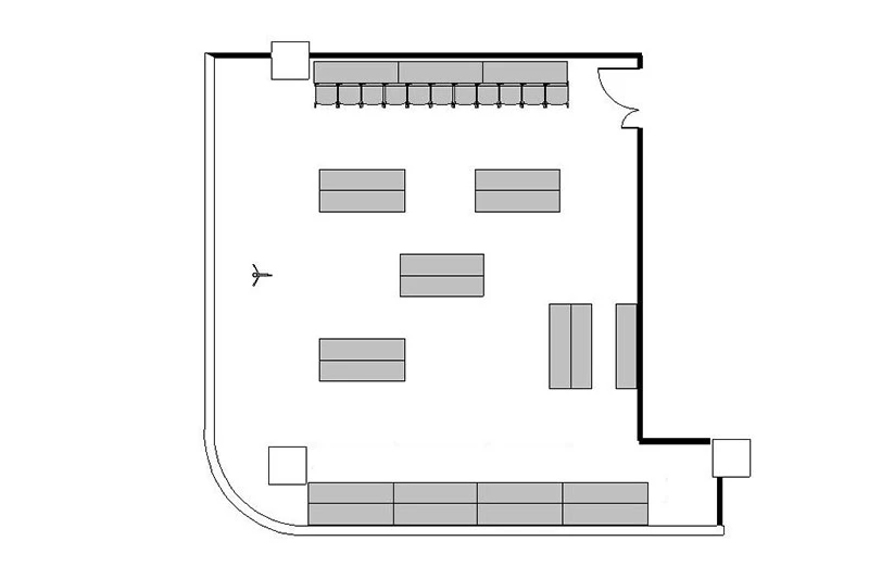
フロアマップ/レイアウト
【第1回】ご利用会場(TKP東京駅カンファレンスセンター)
【第1回】懇親会会場レイアウト
【第2回】ご利用会場(TKPガーデンシティPREMIUM東京駅丸の内中央)
【第2回】懇親会会場レイアウト
【第3回】ご利用会場(TKP東京駅カンファレンスセンター)
【第3回】懇親会会場レイアウト
利用施設①
TKPガーデンシティPREMIUM東京駅丸の内中央
JR線 東京駅 八重洲北口改札を出て左方向、日本橋口 直結
全11会場
〜64名
カンファレンスルーム12B
TKPガーデンシティPREMIUM東京駅丸の内中央
¥
25,200
〜
¥
29,600
(税抜)/時間
〜36名
117.78㎡
ホール12I
TKPガーデンシティPREMIUM東京駅丸の内中央
¥
37,400
〜
¥
44,000
(税抜)/時間
〜64名
176.5㎡
東京都
千代田区
東京駅
TKPガーデンシティPREMIUM東京駅丸の内中央
利用施設②
TKP東京駅カンファレンスセンター
JR線 東京駅 八重洲中央口 徒歩1分
全34会場
〜153名
カンファレンスルーム8B
TKP東京駅カンファレンスセンター
¥
20,100
〜
¥
23,700
(税抜)/時間
〜54名
83.64㎡
カンファレンスルーム8C
TKP東京駅カンファレンスセンター
¥
16,900
〜
¥
19,900
(税抜)/時間
〜42名
74.13㎡
カンファレンスルーム8D
TKP東京駅カンファレンスセンター
¥
17,400
〜
¥
20,500
(税抜)/時間
〜60名
70.01㎡
ホール8E
TKP東京駅カンファレンスセンター
¥
40,100
〜
¥
47,200
(税抜)/時間
〜144名
190.43㎡
東京都
千代田区
東京駅
TKP東京駅カンファレンスセンター
人気エリアから探す
東京都
東京駅
日本橋駅
新橋駅
品川駅
田町駅
市ヶ谷駅
新宿駅
渋谷駅
池袋駅
神田駅
秋葉原駅
千葉県
横浜駅
みなとみらい駅
埼玉県(大宮)
名古屋駅
大阪府
大阪・梅田駅
新大阪駅
京都府
札幌駅
宮城県(仙台)
兵庫県(神戸)
広島県
博多駅
予約・問い合わせ
03-4577-9260
(9:00-18:00/年中無休)
フォームでのお問い合わせはこちら
(1営業日以内に返答)
予約・問い合わせ
予約総合窓口
(9:00~18:00/年中無休)
03-4577-9260
03-4577-9260
貸会議室ネット
初めてご利用の方へ
TKPのサービス一覧
よくあるご質問
利用規約・キャンセルポリシー
会場を探す
条件から探す
トピックス
会場の使い方
キックオフミーティング
Web会議・テレビ会議
分科会・定例会
会議・ミーティング
会社説明会
講演会
ウェビナー
セミナー
同窓会
親睦会・歓送迎会
忘年会・新年会
パーティー・懇親会・二次会
CBT
筆記試験
選挙事務所
プロジェクトオフィス
レンタルオフィス
事務所移転に伴う一時利用
荷物保管・倉庫利用
学会
大型イベント
商品発表会
国際会議・MICE
展示会
内定式
入社式
表彰式
記念式典
決算説明会
株主総会
オーディション
採用面接
ワークショップ
オンライン研修
合宿・宿泊研修
インターンシップ
インタビュー・取材
記者会見
撮影・収録
お別れの会・法要・偲ぶ会
ご利用事例
会議のお役立ち情報
北海道
札幌エリア
帯広エリア
東北
青森県
岩手県
宮城県
秋田県
山形県
福島県
東京都
東京・大手町・日本橋
新橋・有楽町・銀座
秋葉原・神田・御茶ノ水
市ヶ谷・四ツ谷・麹町
飯田橋・九段下・神保町・竹橋
品川・田町・浜松町
渋谷・恵比寿
赤坂・六本木・麻布
新宿
池袋・高田馬場
大森・羽田
上野・浅草・日暮里
五反田
その他東部
その他西部
千代田区
中央区
港区
新宿区
文京区
台東区
墨田区
江東区
品川区
大田区
渋谷区
豊島区
荒川区
板橋区
関東(東京以外)
神奈川県
千葉県
埼玉県
栃木県
群馬県
茨城県
北陸・甲信越
山梨県
長野県
新潟県
富山県
石川県
東海
岐阜県
静岡県
愛知県
大阪府
大阪・梅田
新大阪
桜ノ宮・京橋
心斎橋・なんば
淀屋橋・本町
その他
関西(大阪以外)
京都府
滋賀県
兵庫県
和歌山県
中国・四国
岡山県
広島県
山口県
香川県
愛媛県
九州・沖縄
福岡県
大分県
長崎県
熊本県
宮崎県
鹿児島県
沖縄県
海外
香港
ティーケーピーのサービス
TKP貸会議室ネット
/
CIRQ
/
fabbit
/
CROSSCOOP
/
TKPレンタルオフィスネット
/
TKPホテル&リゾート
/
TKP研修ネット
/
TKPウェビナーネット
/
TKPイベントネット
/
TKPレンタルネット
TKPパーティー・懇親会ネット
/
TKP FOOD
/
事務局代行サービス
/
採用代行サービス
/
TKPトラベルネット
/
TKPスター貸会議室
利用規約・キャンセルポリシー
/
プライバシーポリシー
/
ソーシャルメディアガイドライン
/
運営会社
/
グループ企業
(C) TKP Corporation