
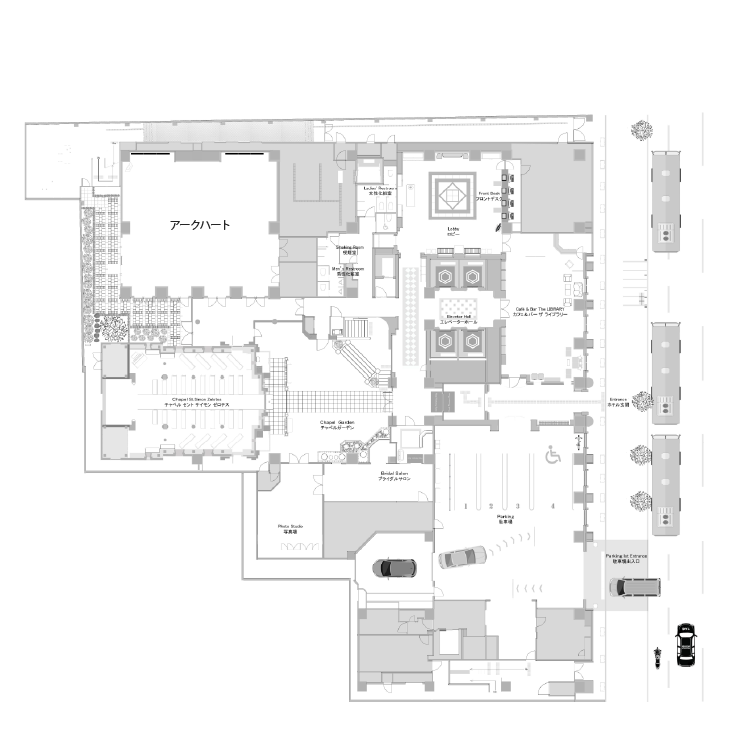
下記のレイアウトパターンの中から、ご利用に合わせてお選びいただけます。
個別空調:有 電気容量(総A数):80A LAN口数:2 窓:有 窓開閉可不可: 可 外受付:不可
本予約後のキャンセルはキャンセル料金が発生いたします。
利用規約・キャンセルポリシーはこちら※TKP直営会場ではないため、TKPスタッフは常駐しておりません。 ※サービス料として別途18%が必要です。 ※音響照明費が別途発生いたします。詳しくはお問い合わせください。 ※ご利用時間には、準備・ご入室・ご退室を含みます。時間外のご利用は延長料金が発生致します。 ※ご利用料金等は予告なく変更させていただく場合がございますので、あらかじめご了承ください。 ※ご利用方法・ご利用内容によっては通常料金とは別途割増料金が発生する場合がございます。あらかじめご了承ください。
〒604-8161
京都府 京都市中京区烏丸通三条下ル饅頭屋町604
月:09:00〜22:00
火:09:00〜22:00
水:09:00〜22:00
木:09:00〜22:00
金:09:00〜22:00
土:09:00〜22:00
日:09:00〜22:00
※時間外のご利用についてはご相談ください
(1営業日以内に返答)