
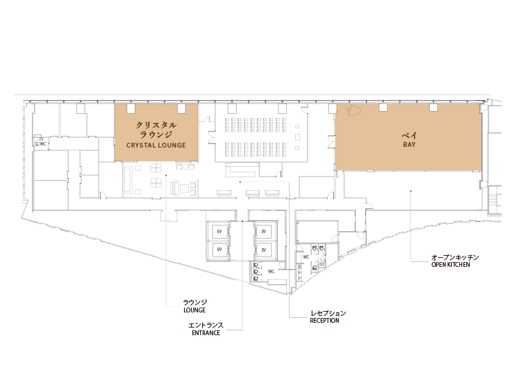
下記のレイアウトパターンの中から、ご利用に合わせてお選びいただけます。
個別空調:無 電気容量(総A数):0A LAN口数:0 窓:有 窓開閉可不可: 不可 外受付:可
本予約後のキャンセルはキャンセル料金が発生いたします。
利用規約・キャンセルポリシーはこちら※飲食物の持込みは原則ご遠慮いただいております。持込みご希望の方は、別途持込料及び清掃料を頂戴する形でご相談を承ります。 ※準備および後片付けの時間も含めてご予約ください。 ※ご利用料金等は予告なく変更させていただく場合がございますので、あらかじめご了承ください。 ※ご利用方法・ご利用内容によっては通常料金とは別途割増料金が発生する場合がございます。あらかじめご了承ください。 [N]
〒231-0062
神奈川県 横浜市中区桜木町1-1-7ヒューリックみなとみらい 17階 横浜モノリス1階〜2階(事務所:1階)
月:09:00〜22:00
火:09:00〜22:00
水:09:00〜22:00
木:09:00〜22:00
金:09:00〜22:00
土:09:00〜22:00
日:09:00〜22:00
※時間外のご利用についてはご相談ください
(1営業日以内に返答)