TKP渋谷長井記念ホール
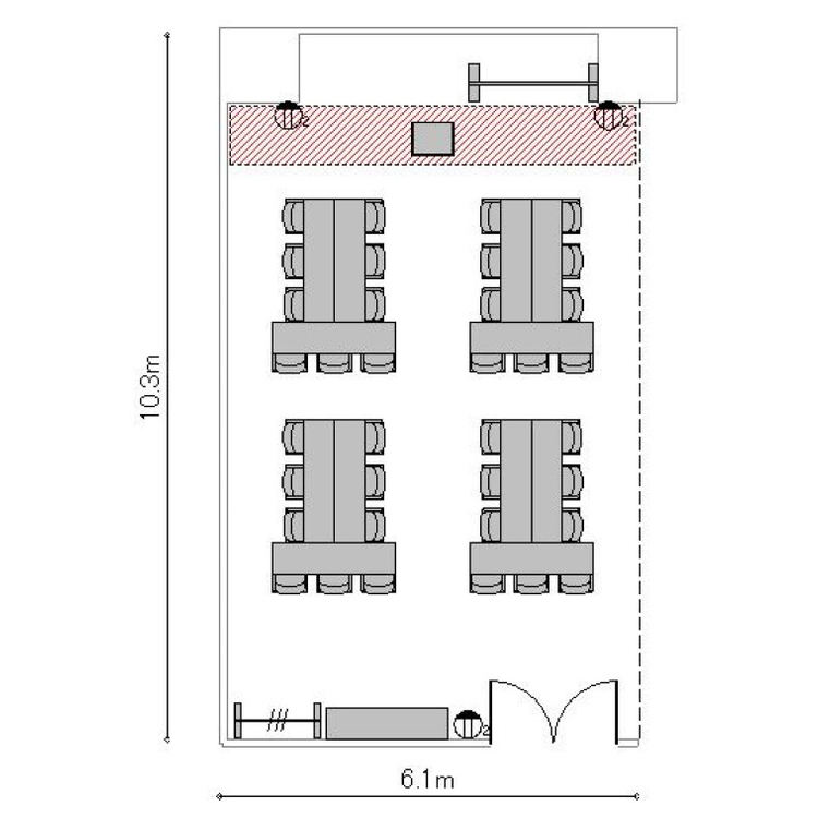
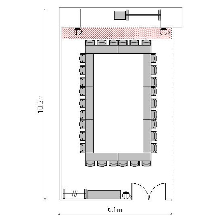
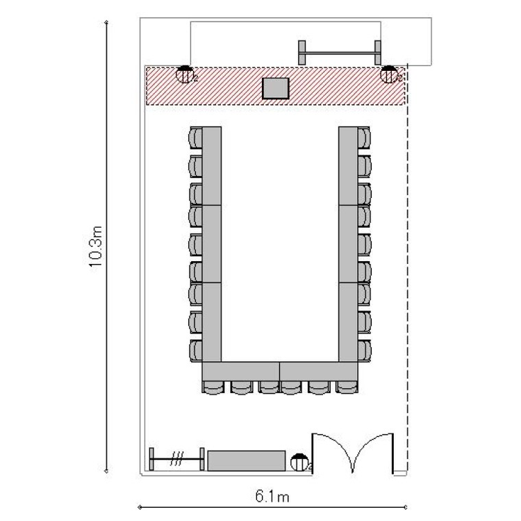
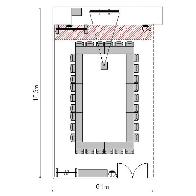
会議室A
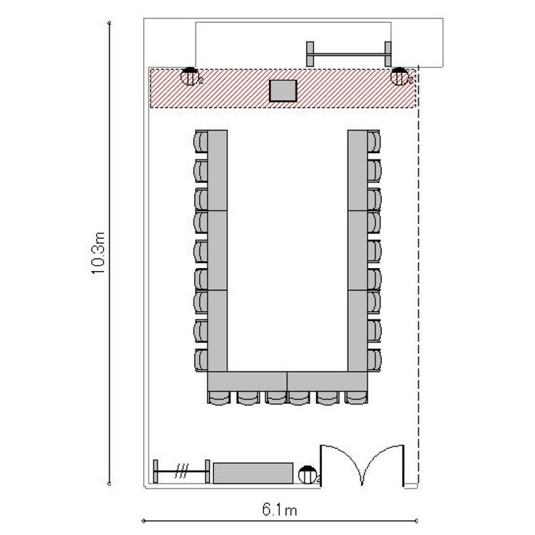
ホワイトボード : 1
演台 : 1
電源タップ : 3
個別空調:あり 電気容量(総A数):30A LAN口数:1 窓:あり 窓開閉可不可: 不可
外受付:不可
















〒150-0002
東京都渋谷区渋谷2-12-15 日本薬学会長井記念館 B2階・1階(事務所:B2階)
JR山手線渋谷駅東口 徒歩8分
東京メトロ 渋谷駅 B5番出口 徒歩8分 東急電鉄 渋谷駅 B5番出口 徒歩8分 都バスJR渋谷駅東口、「学03日赤医療センター行き」1つ目「渋谷3丁目」下車すぐ
ご利用
可能時間
月曜日:08:00〜22:00
火曜日:08:00〜22:00
水曜日:08:00〜22:00
木曜日:08:00〜22:00
金曜日:08:00〜22:00
土曜日:08:00〜22:00
日曜日:08:00〜22:00
※時間外のご利用についてはご相談ください。
株式会社ティーケーピー
本社:〒162-0844 東京都新宿区市谷八幡町8番地 TKP市ヶ谷ビル2階
お問い合わせ:03-4577-9269