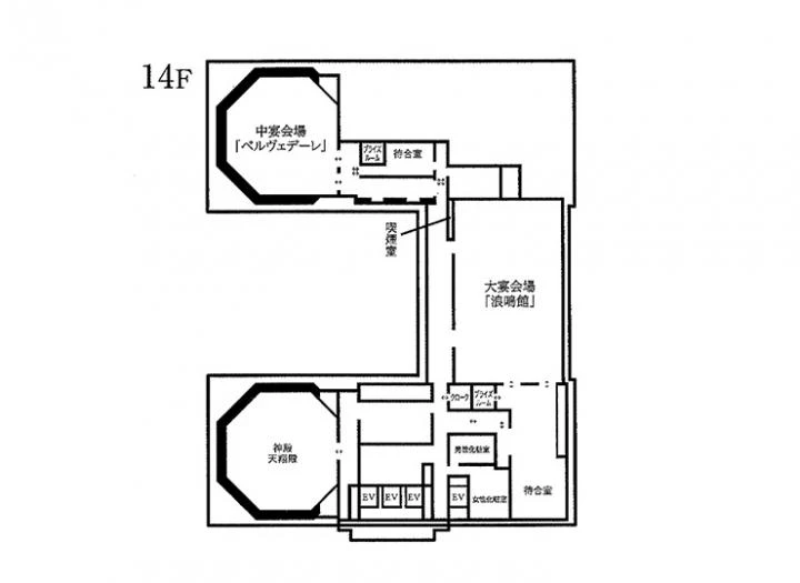
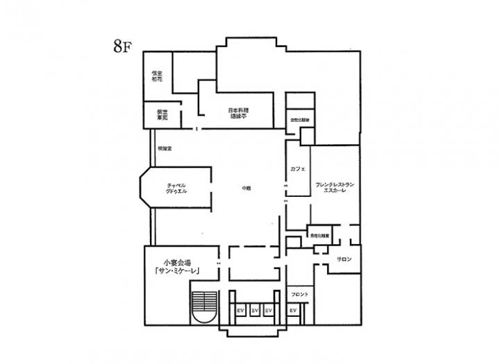
TKPホテルモントレ大阪
アマリエ+パルフィ
個別空調:有 電気容量(総A数):320A LAN口数:7 窓:有 窓開閉可不可: 可
外受付:可






〒530-0001
大阪府大阪市北区梅田3-3-45
JR大阪環状線 大阪駅 西口 徒歩3分
大阪メトロ四つ橋線 西梅田駅 北改札口 徒歩5分 阪神本線 梅田駅 西口 徒歩5分 大阪メトロ御堂筋線 梅田駅 南改札口 徒歩8分 大阪メトロ谷町線 東梅田駅 北東・北西改札口 徒歩9分
ご利用
可能時間
月曜日:07:00〜22:00
火曜日:07:00〜22:00
水曜日:07:00〜22:00
木曜日:07:00〜22:00
金曜日:07:00〜22:00
土曜日:07:00〜22:00
日曜日:07:00〜22:00
※時間外のご利用についてはご相談ください。
株式会社ティーケーピー
本社:〒162-0844 東京都新宿区市谷八幡町8番地 TKP市ヶ谷ビル2階
お問い合わせ:03-4577-9269