CIRQ(シルク)沖縄
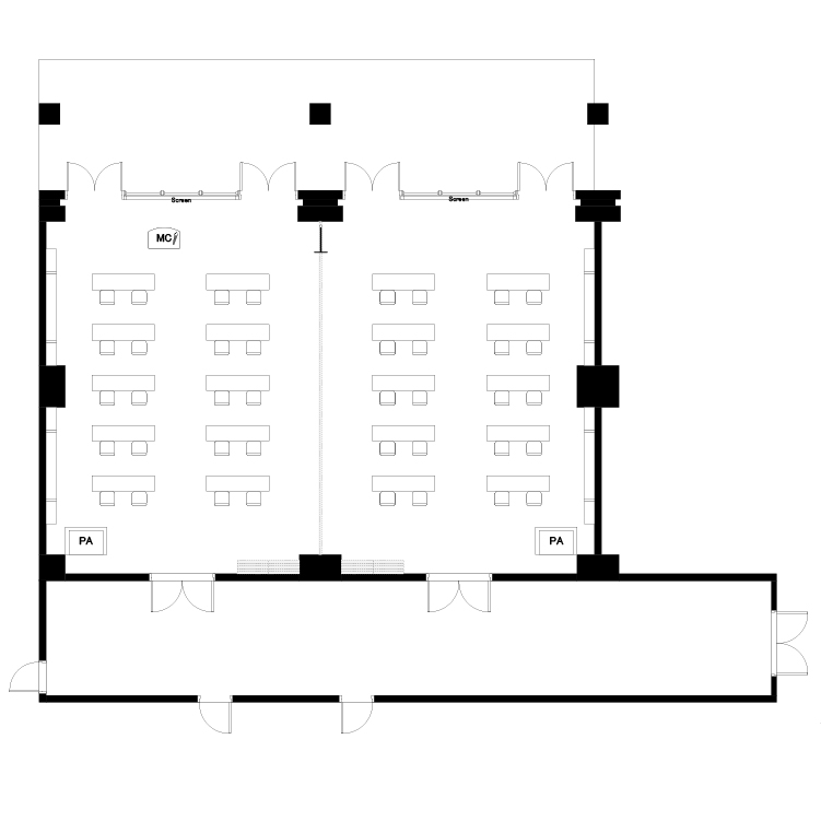
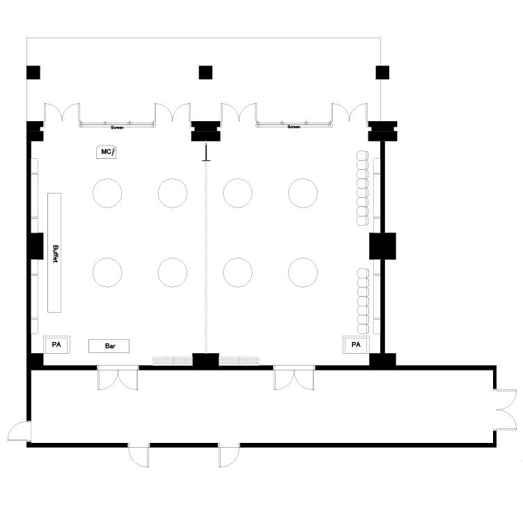
モダンスイートA+B(全)
個別空調:なし 電気容量(総A数):0A LAN口数:0 窓:有 窓開閉可不可: 不可
外受付:不可






〒904-0115
沖縄県中頭郡北谷町美浜49 セントレジェンダ沖縄
那覇空港より車で約35分
沖縄自動車道那覇ICより車で約25分
ご利用
可能時間
月曜日:09:00〜23:00
火曜日:09:00〜23:00
水曜日:09:00〜23:00
木曜日:09:00〜23:00
金曜日:09:00〜23:00
土曜日:09:00〜23:00
日曜日:09:00〜23:00
※時間外のご利用についてはご相談ください。
株式会社ティーケーピー
本社:〒162-0844 東京都新宿区市谷八幡町8番地 TKP市ヶ谷ビル2階
お問い合わせ:03-4577-9269