TKPガーデンシティPREMIUM横浜西口
カンファレンスルーム3B
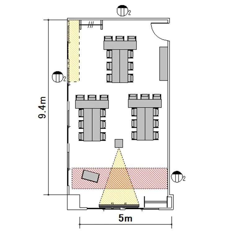
ホワイトボード : 1
演台 : 1
電源タップ : 3
個別空調:有 電気容量(総A数):37.5A LAN口数:4 窓:有 窓開閉可不可: 可
外受付:不可





















〒220-0005
神奈川県横浜市西区南幸2-19-9 TKP横浜ビル(旧 横浜MKビル)(事務所:3階)
JR線 横浜駅 西口 徒歩7分
横浜市営地下鉄ブルーライン 横浜駅 9出入口 徒歩4分 相鉄本線 横浜駅 西口 徒歩6分 みなとみらい線 横浜駅 西口 徒歩7分 京急本線 横浜駅 西口 徒歩7分 東急東横線 横浜駅 西口 徒歩7分
ご利用
可能時間
月曜日:07:00〜23:00
火曜日:07:00〜23:00
水曜日:07:00〜23:00
木曜日:07:00〜23:00
金曜日:07:00〜23:00
土曜日:07:00〜23:00
日曜日:07:00〜23:00
※時間外のご利用についてはご相談ください。
株式会社ティーケーピー
本社:〒162-0844 東京都新宿区市谷八幡町8番地 TKP市ヶ谷ビル2階
お問い合わせ:03-4577-9269