TKPガーデンシティPREMIUM心斎橋
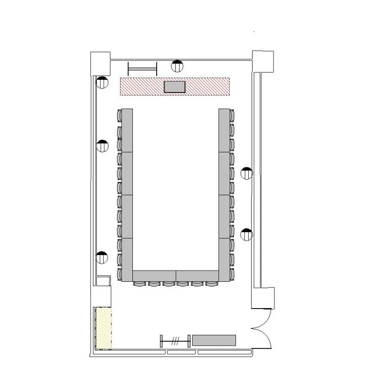
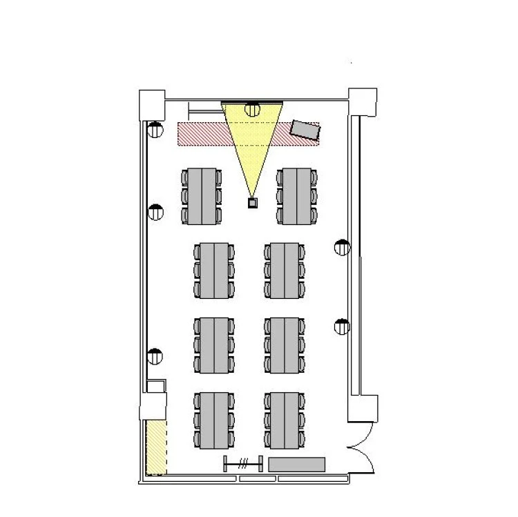
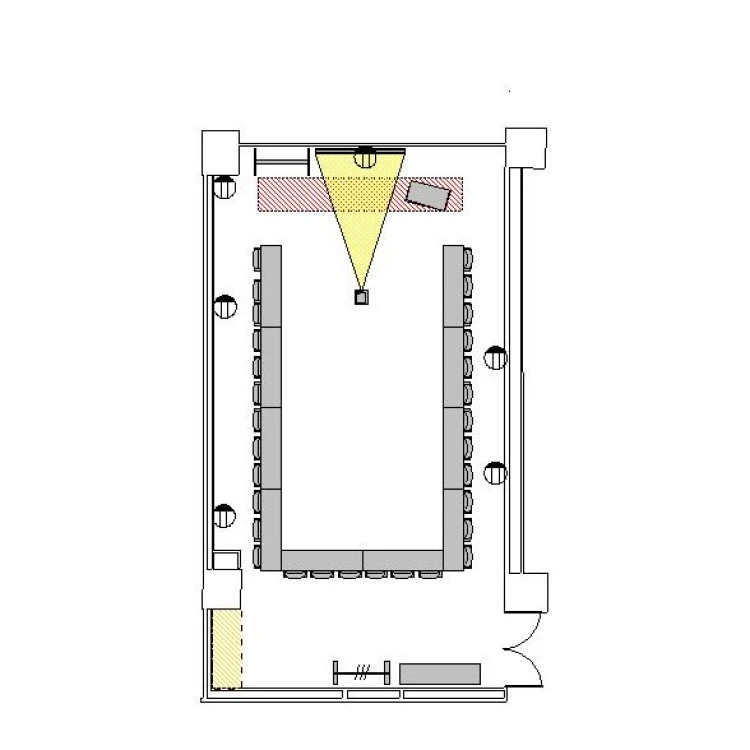
カンファレンスルーム3C
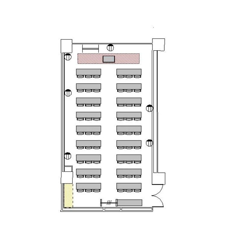
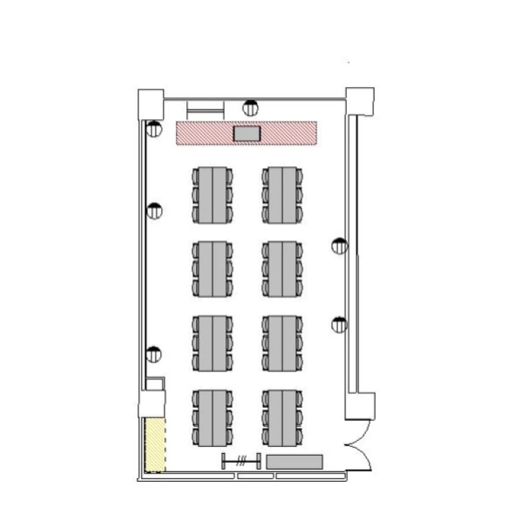
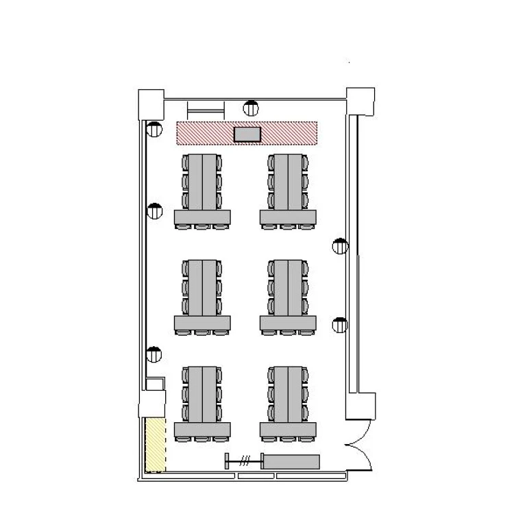
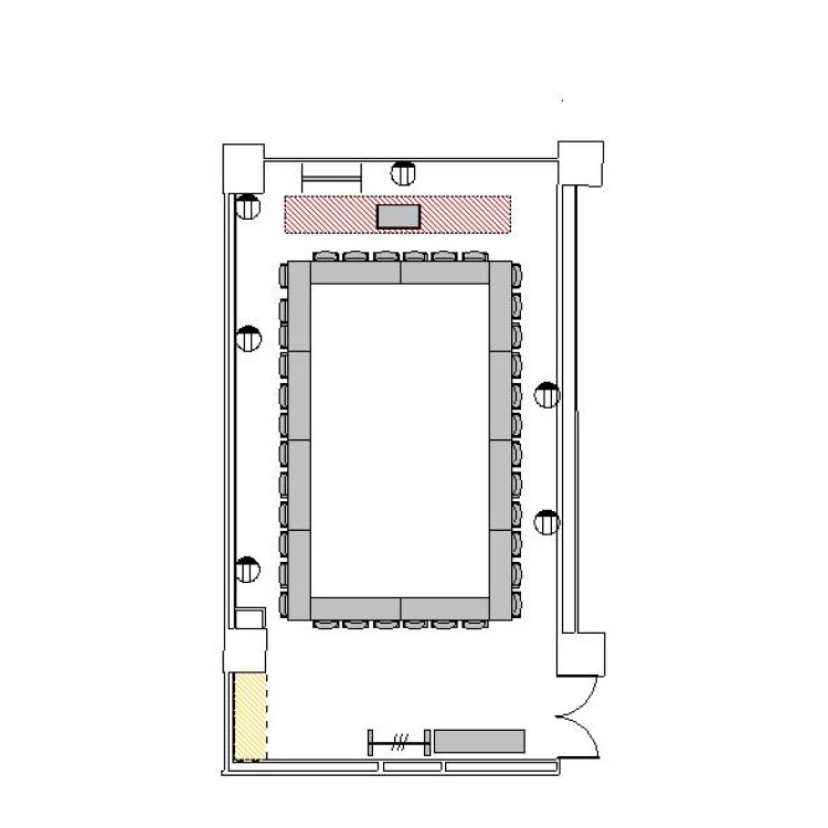
ホワイトボード : 1
演台 : 1
電源タップ : 3
個別空調:有 電気容量(総A数):30A LAN口数:1 窓:有 窓開閉可不可: 可
外受付:可















〒542-0081
大阪府大阪市中央区南船場4-3-2 ゼント心斎橋 3~4階(事務所:4階)
大阪メトロ御堂筋線 心斎橋駅 3番出口 徒歩2分
ご利用
可能時間
月曜日:07:00〜23:00
火曜日:07:00〜23:00
水曜日:07:00〜23:00
木曜日:07:00〜23:00
金曜日:07:00〜23:00
土曜日:07:00〜23:00
日曜日:07:00〜23:00
※時間外のご利用についてはご相談ください。
株式会社ティーケーピー
本社:〒162-0844 東京都新宿区市谷八幡町8番地 TKP市ヶ谷ビル2階
お問い合わせ:03-4577-9269