TKPガーデンシティPREMIUM品川高輪口
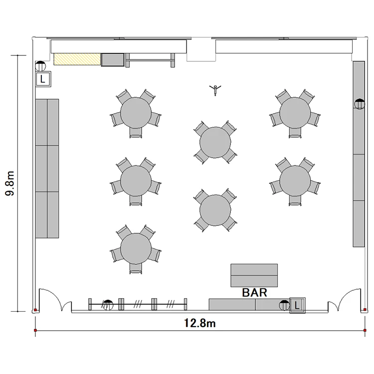
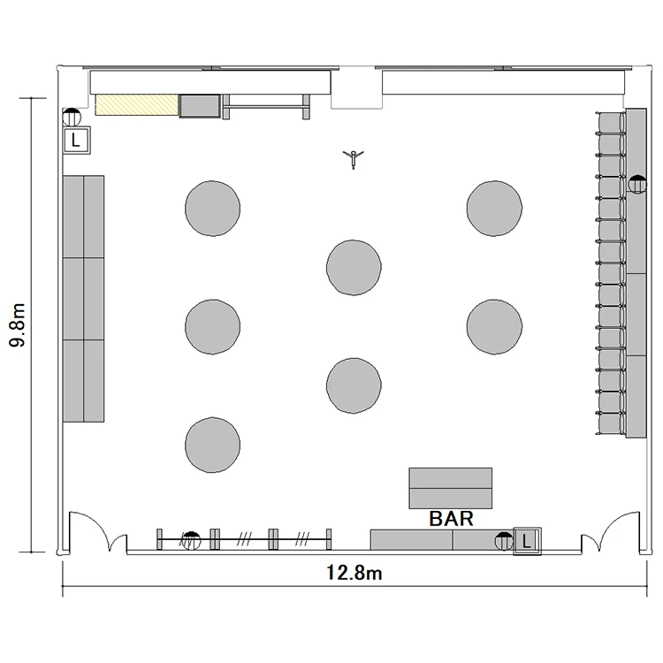
カンファレンスルーム4G
ホワイトボード : 1
演台 : 1
高速無料Wi-Fi : 1
モニター (90インチ~) : 1
電源タップ : 3
個別空調:有 電気容量(総A数):60A LAN口数:4 窓:有 窓開閉可不可: 不可
外受付:可

















〒108-0074
東京都港区高輪4-10-18 京急第一ビル 3~4階(事務所:4階)
JR線 品川駅 高輪口 徒歩2分
京急本線 品川駅 高輪口 徒歩2分
ご利用
可能時間
月曜日:07:30〜22:00
火曜日:07:30〜22:00
水曜日:07:30〜22:00
木曜日:07:30〜22:00
金曜日:07:30〜22:00
土曜日:07:30〜22:00
日曜日:07:30〜22:00
※時間外のご利用についてはご相談ください。
株式会社ティーケーピー
本社:〒162-0844 東京都新宿区市谷八幡町8番地 TKP市ヶ谷ビル2階
お問い合わせ:03-4577-9269