TKPガーデンシティPREMIUM品川HEART
ホール8A
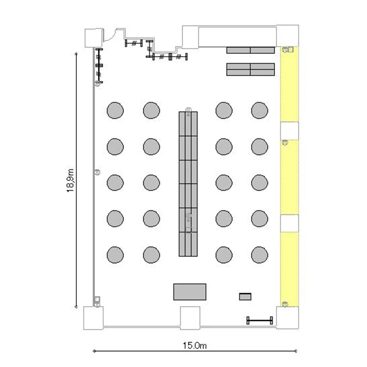
ホワイトボード : 1
有線マイク : 2
演台 : 1
電源タップ : 5
個別空調:有 電気容量(総A数):105A LAN口数:4 窓:有 窓開閉可不可: 不可
外受付:不可
















〒108-0075
東京都港区港南1-8-23 ShinagawaHEART 8階(事務所:8階)
JR線 品川駅 港南口 徒歩5分
ご利用
可能時間
月曜日:07:00〜23:00
火曜日:07:00〜23:00
水曜日:07:00〜23:00
木曜日:07:00〜23:00
金曜日:07:00〜23:00
土曜日:07:00〜23:00
日曜日:07:00〜23:00
※時間外のご利用についてはご相談ください。
株式会社ティーケーピー
本社:〒162-0844 東京都新宿区市谷八幡町8番地 TKP市ヶ谷ビル2階
お問い合わせ:03-4577-9269