TKPガーデンシティPREMIUM札幌駅南口
カンファレンスルーム7A
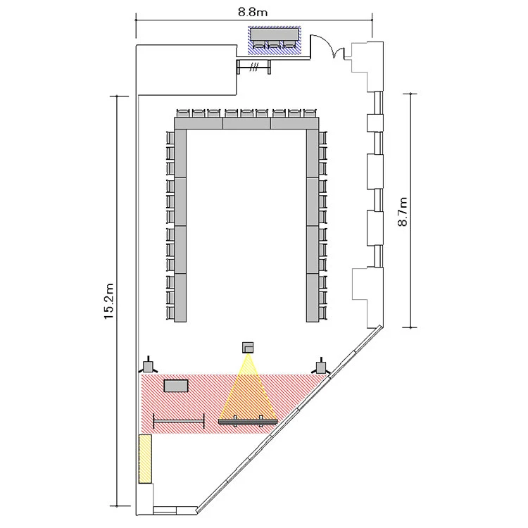
ホワイトボード : 1
演台 : 1
電源タップ : 3
個別空調:有 電気容量(総A数):40A LAN口数:2 窓:有 窓開閉可不可: 不可
外受付:不可














〒060-0003
北海道札幌市中央区北3条西3-1-44 ヒューリックスクエア札幌7階(事務所:7階)
札幌市営地下鉄南北線 さっぽろ駅 直結
JR札幌駅 地下通徒歩4分
ご利用
可能時間
月曜日:08:00〜22:00
火曜日:08:00〜22:00
水曜日:08:00〜22:00
木曜日:08:00〜22:00
金曜日:08:00〜22:00
土曜日:08:00〜22:00
日曜日:08:00〜22:00
※時間外のご利用についてはご相談ください。
株式会社ティーケーピー
本社:〒162-0844 東京都新宿区市谷八幡町8番地 TKP市ヶ谷ビル2階
お問い合わせ:03-4577-9269