TKPガーデンシティPREMIUM札幌大通
カンファレンスルーム6B
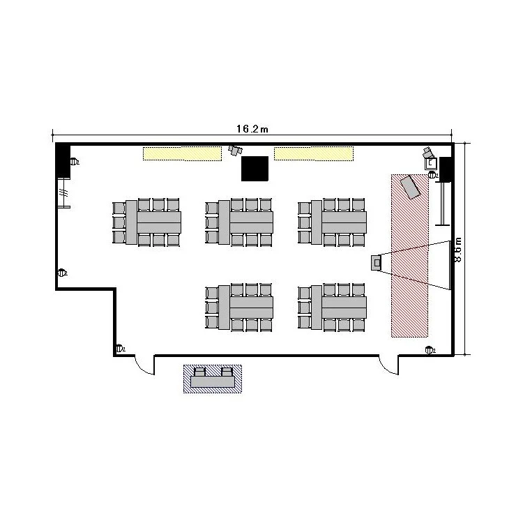
ホワイトボード : 1
演台 : 1
電源タップ : 3
個別空調:有 電気容量(総A数):40A LAN口数:2 窓:有 窓開閉可不可: 可
外受付:可



















〒060-0061
北海道札幌市中央区南1条西1-8-2 高桑ビル 5~7階(事務所:6階)
札幌市営地下鉄 大通駅 34番出口 直結
ご利用
可能時間
月曜日:07:00〜22:00
火曜日:07:00〜22:00
水曜日:07:00〜22:00
木曜日:07:00〜22:00
金曜日:07:00〜22:00
土曜日:07:00〜22:00
日曜日:07:00〜22:00
※時間外のご利用についてはご相談ください。
株式会社ティーケーピー
本社:〒162-0844 東京都新宿区市谷八幡町8番地 TKP市ヶ谷ビル2階
お問い合わせ:03-4577-9269