TKPガーデンシティPREMIUM名古屋駅前
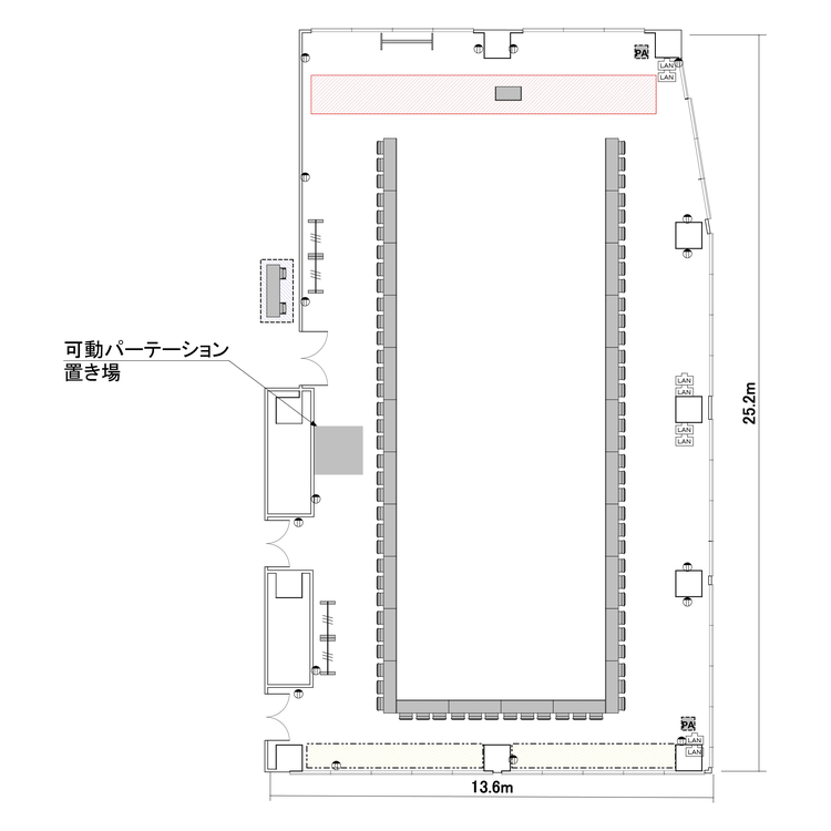
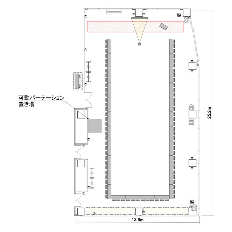
ホール3G+3H
ホワイトボード : 1
有線マイク : 2
演台 : 1
電源タップ : 5
個別空調:有 電気容量(総A数):135A LAN口数:8 窓:有 窓開閉可不可: 不可
外受付:可
















〒451-0045
愛知県名古屋市西区名駅1-1-17 名駅ダイヤメイテツビル 3階(事務所:3階)
名古屋市営地下鉄 名古屋駅 10出入口 徒歩3分
名鉄名古屋本線 名鉄名古屋駅 徒歩5分 近鉄名古屋線 近鉄名古屋駅 JR線・新幹線連絡改札口 徒歩5分
ご利用
可能時間
月曜日:07:00〜23:00
火曜日:07:00〜23:00
水曜日:07:00〜23:00
木曜日:07:00〜23:00
金曜日:07:00〜23:00
土曜日:07:00〜23:00
日曜日:07:00〜23:00
※時間外のご利用についてはご相談ください。
株式会社ティーケーピー
本社:〒162-0844 東京都新宿区市谷八幡町8番地 TKP市ヶ谷ビル2階
お問い合わせ:03-4577-9269