TKPガーデンシティPREMIUM名駅西口
3F:アルタイル
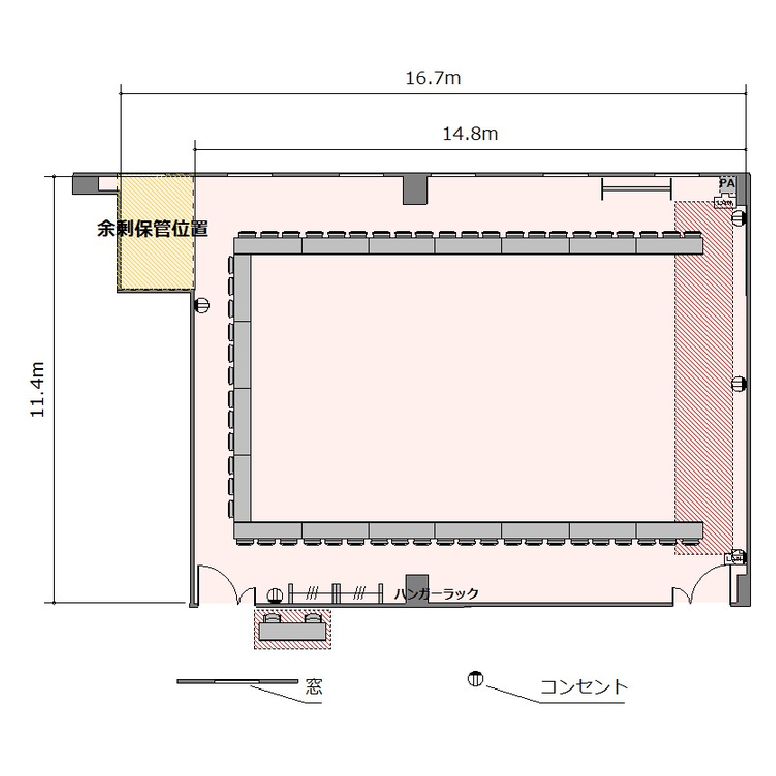
ホワイトボード : 1
有線マイク : 2
演台 : 1
電源タップ : 5
個別空調:有 電気容量(総A数):45A LAN口数:2 窓:有 窓開閉可不可: 不可
外受付:可

















〒453-0014
愛知県名古屋市中村区則武1-6-3 ベルヴュオフィス名古屋 1~3階(事務所:1階)
JR東海道本線 名古屋駅 徒歩5分
近鉄名古屋線 近鉄名古屋駅 徒歩5分 名鉄名古屋本線 名鉄名古屋駅 徒歩5分 名古屋市営地下鉄 名古屋駅 徒歩5分
ご利用
可能時間
月曜日:07:00〜23:00
火曜日:07:00〜23:00
水曜日:07:00〜23:00
木曜日:07:00〜23:00
金曜日:07:00〜23:00
土曜日:07:00〜23:00
日曜日:07:00〜23:00
※時間外のご利用についてはご相談ください。
株式会社ティーケーピー
本社:〒162-0844 東京都新宿区市谷八幡町8番地 TKP市ヶ谷ビル2階
お問い合わせ:03-4577-9269