TKPガーデンシティPREMIUM京橋
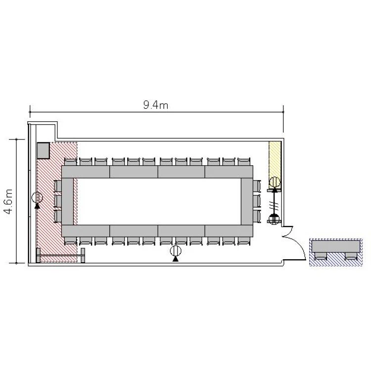
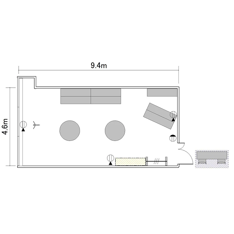
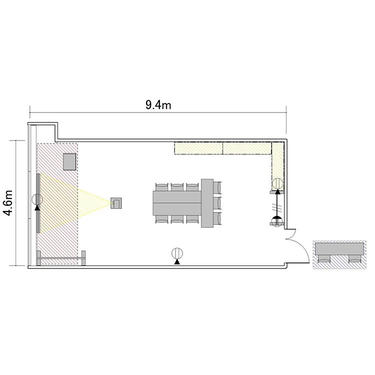
カンファレンスルーム22E
ホワイトボード : 1
演台 : 1
電源タップ : 3
個別空調:有 電気容量(総A数):45A LAN口数:2 窓:有 窓開閉可不可: 不可
外受付:不可
















〒104-0031
東京都中央区京橋2-2-1 京橋エドグラン 22階(事務所:22階)
東京メトロ銀座線 京橋駅 8番出口 直結
都営浅草線 宝町駅 A5 / A6出口 徒歩3分 JR線 東京駅 八重洲南口 徒歩5分 東京メトロ丸ノ内線 東京駅 八重洲南口 徒歩5分 東京メトロ有楽町線 銀座一丁目駅 7番出口 徒歩5分
ご利用
可能時間
月曜日:07:00〜23:00
火曜日:07:00〜23:00
水曜日:07:00〜23:00
木曜日:07:00〜23:00
金曜日:07:00〜23:00
土曜日:07:00〜23:00
日曜日:07:00〜23:00
※時間外のご利用についてはご相談ください。
株式会社ティーケーピー
本社:〒162-0844 東京都新宿区市谷八幡町8番地 TKP市ヶ谷ビル2階
お問い合わせ:03-4577-9269