TKPガーデンシティPREMIUM広島駅北口
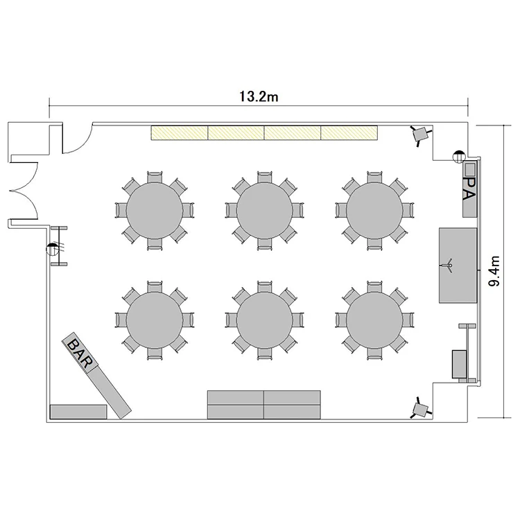
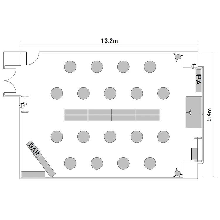
ホール3E
ホワイトボード : 1
有線マイク : 2
演台 : 1
電源タップ : 5
個別空調:有 電気容量(総A数):30A LAN口数:1 窓:有 窓開閉可不可: 不可
外受付:可

















〒732-0057
広島県広島市東区二葉の里3-5-7 GRANODE広島 3階(事務所:3階)
JR線 広島駅 徒歩 5分
広島駅 在来線口/新幹線口/ 徒歩5分 広島電鉄 広島駅 徒歩9分
ご利用
可能時間
月曜日:07:00〜23:00
火曜日:07:00〜23:00
水曜日:07:00〜23:00
木曜日:07:00〜23:00
金曜日:07:00〜23:00
土曜日:07:00〜23:00
日曜日:07:00〜23:00
※時間外のご利用についてはご相談ください。
株式会社ティーケーピー
本社:〒162-0844 東京都新宿区市谷八幡町8番地 TKP市ヶ谷ビル2階
お問い合わせ:03-4577-9269