TKPガーデンシティPREMIUM広島駅前
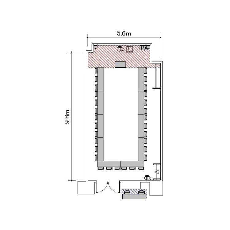
カンファレンスルーム5D
ホワイトボード : 1
演台 : 1
電源タップ : 3
個別空調:なし 電気容量(総A数):30A LAN口数:2 窓:なし 窓開閉可不可: 不可
外受付:不可





















〒732-0821
広島県広島市南区大須賀町13-9 ベルビュオフィス広島
JR線 広島駅 南口 徒歩2分
広島電鉄 広島駅 徒歩2分
ご利用
可能時間
月曜日:07:00〜23:00
火曜日:07:00〜23:00
水曜日:07:00〜23:00
木曜日:07:00〜23:00
金曜日:07:00〜23:00
土曜日:07:00〜23:00
日曜日:07:00〜23:00
※時間外のご利用についてはご相談ください。
株式会社ティーケーピー
本社:〒162-0844 東京都新宿区市谷八幡町8番地 TKP市ヶ谷ビル2階
お問い合わせ:03-4577-9269