TKPガーデンシティPREMIUM横浜ランドマークタワー
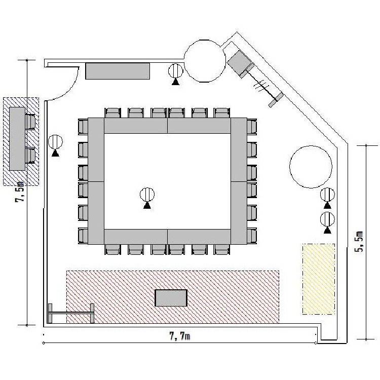
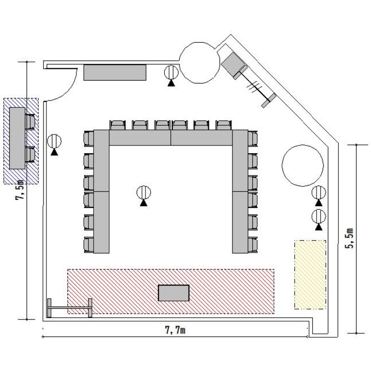
カンファレンスルームH
ホワイトボード : 1
演台 : 1
高速無料Wi-Fi : 1
電源タップ : 3
個別空調:有 電気容量(総A数):60A LAN口数:1 窓:有 窓開閉可不可: 不可
外受付:可














〒220-8125
神奈川県横浜市西区みなとみらい2-2-1 横浜ランドマークタワー 25階(事務所:25階)
JR京浜東北線 桜木町駅 北1出口より 徒歩5分
みなとみらい線 みなとみらい駅 ランドマークタワー・クイーンズスクエア方面改札口 徒歩5分 JR京浜東北線 横浜駅 きた東口Aより車で10分
ご利用
可能時間
月曜日:07:00〜23:00
火曜日:07:00〜23:00
水曜日:07:00〜23:00
木曜日:07:00〜23:00
金曜日:07:00〜23:00
土曜日:07:00〜23:00
日曜日:07:00〜23:00
※時間外のご利用についてはご相談ください。
株式会社ティーケーピー
本社:〒162-0844 東京都新宿区市谷八幡町8番地 TKP市ヶ谷ビル2階
お問い合わせ:03-4577-9269