TKPガーデンシティ渋谷
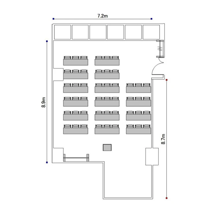
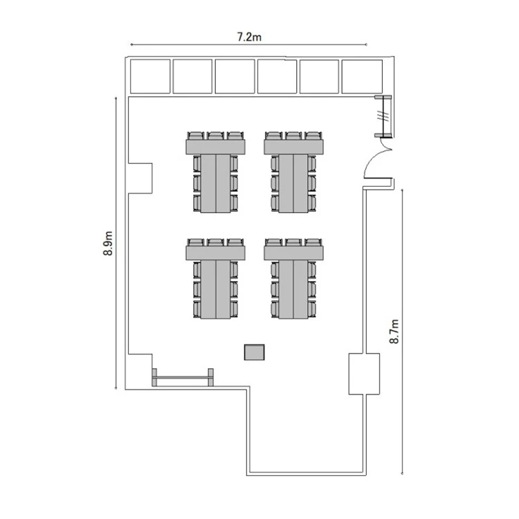
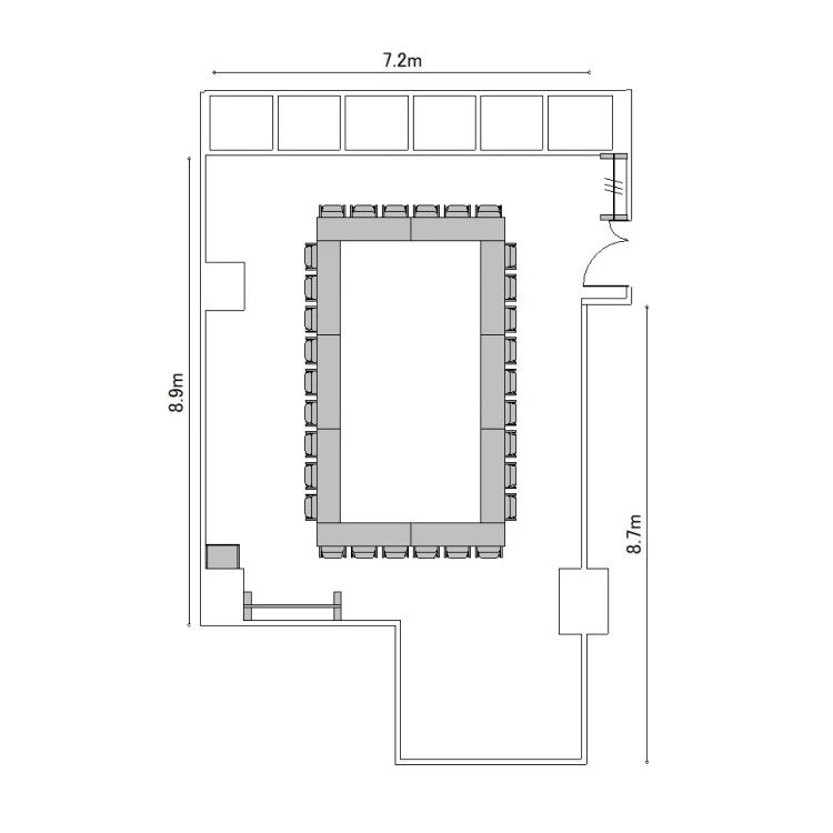
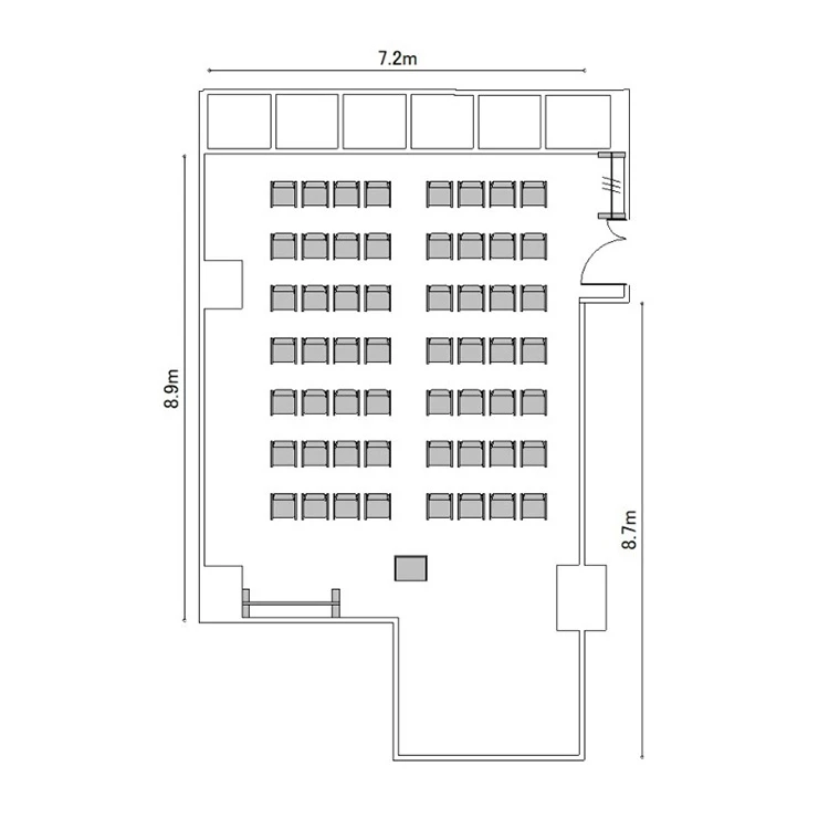
カンファレンスルーム8M
ホワイトボード : 1
演台 : 1
高速無料Wi-Fi : 1
電源タップ : 3
個別空調:無 電気容量(総A数):60A LAN口数:1 窓:有 窓開閉可不可: 不可
外受付:不可


















〒150-0002
東京都渋谷区渋谷2-22-3 渋谷東口ビル 1階・4~5階・8階・11階(事務所:1階)
JR線 渋谷駅 中央改札 徒歩3分
東京メトロ銀座線 渋谷駅 徒歩2分 東京メトロ 渋谷駅 B5番出口 徒歩3分 東急電鉄 渋谷駅 B5番出口 徒歩3分
ご利用
可能時間
月曜日:07:00〜23:00
火曜日:07:00〜23:00
水曜日:07:00〜23:00
木曜日:07:00〜23:00
金曜日:07:00〜23:00
土曜日:07:00〜23:00
日曜日:07:00〜23:00
※時間外のご利用についてはご相談ください。
株式会社ティーケーピー
本社:〒162-0844 東京都新宿区市谷八幡町8番地 TKP市ヶ谷ビル2階
お問い合わせ:03-4577-9269