TKPガーデンシティ仙台
カンファレンスルーム30D
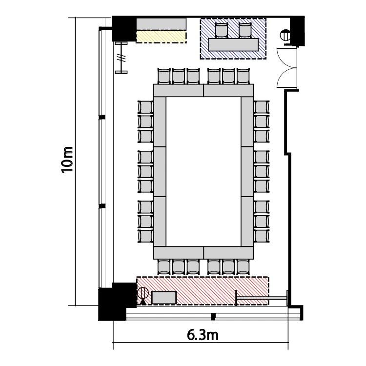
ホワイトボード : 1
演台 : 1
電源タップ : 3
個別空調:有 電気容量(総A数):35A LAN口数:1 窓:有 窓開閉可不可: 不可
外受付:不可
















〒980-6130
宮城県仙台市青葉区中央1-3-1 AER 21階・30階(事務所:30階)
JR東北本線 仙台駅 西口 徒歩2分
仙台市地下鉄南北線 仙台駅 北8出口 徒歩2分
ご利用
可能時間
月曜日:07:00〜23:00
火曜日:07:00〜23:00
水曜日:07:00〜23:00
木曜日:07:00〜23:00
金曜日:07:00〜23:00
土曜日:07:00〜23:00
日曜日:07:00〜23:00
※時間外のご利用についてはご相談ください。
株式会社ティーケーピー
本社:〒162-0844 東京都新宿区市谷八幡町8番地 TKP市ヶ谷ビル2階
お問い合わせ:03-4577-9269