TKPガーデンシティ札幌駅前
ミーティングルーム4C
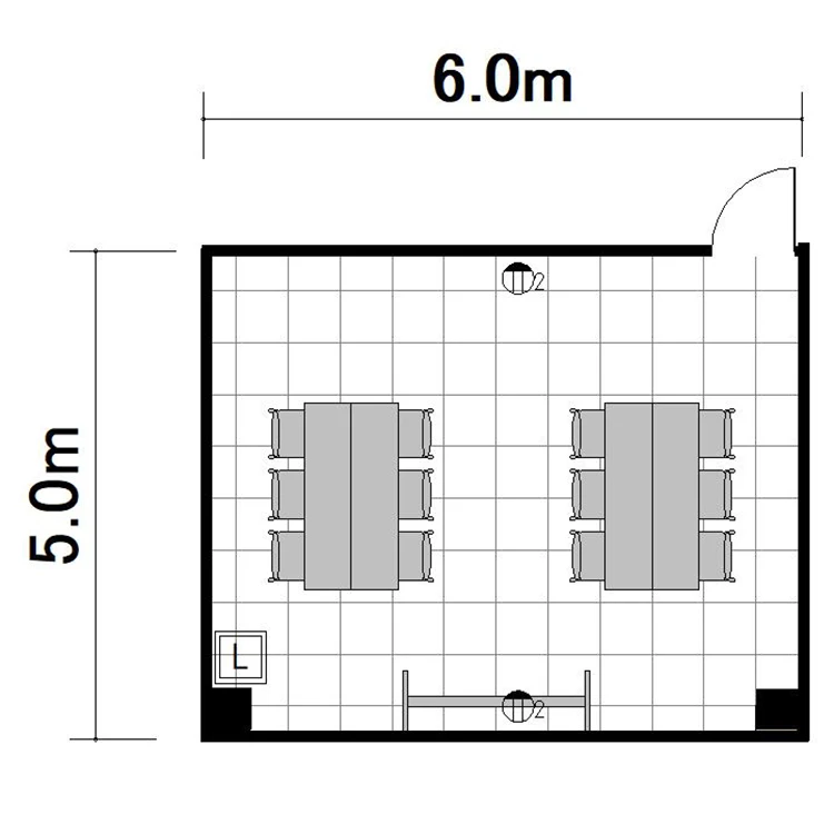
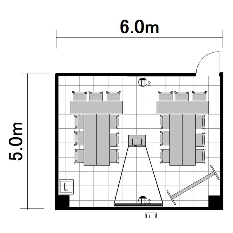
ホワイトボード : 1
電源タップ : 2
個別空調:有 電気容量(総A数):20A LAN口数:1 窓:なし 窓開閉可不可: 不可
外受付:不可


















〒060-0002
北海道札幌市中央区北2条西2-19 アパホテル〈TKP札幌駅前〉内 TKP札幌ビル 2~5階(事務所:4階)
JR函館本線 札幌駅 南口 徒歩8分
札幌市営地下鉄東西線 大通駅 札幌駅前通地下歩行空間3番出口 徒歩3分 札幌市営地下鉄南北線 さっぽろ駅 札幌駅前通地下歩行空間3番出口 徒歩3分 札幌市営地下鉄東豊線 さっぽろ駅 22番出口徒歩3分
ご利用
可能時間
月曜日:08:00〜23:00
火曜日:08:00〜23:00
水曜日:08:00〜23:00
木曜日:08:00〜23:00
金曜日:08:00〜23:00
土曜日:08:00〜23:00
日曜日:08:00〜23:00
※時間外のご利用についてはご相談ください。
株式会社ティーケーピー
本社:〒162-0844 東京都新宿区市谷八幡町8番地 TKP市ヶ谷ビル2階
お問い合わせ:03-4577-9269