TKPガーデンシティ大阪OAPタワー
ハナモモ
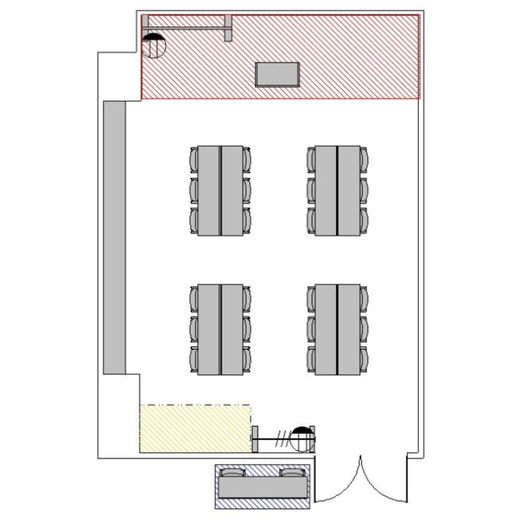
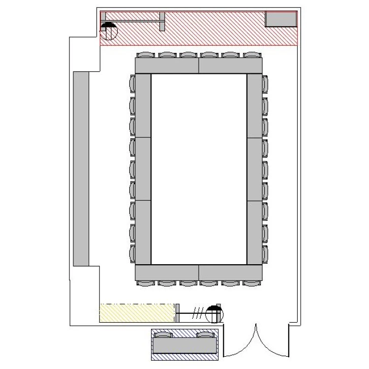
ホワイトボード : 1
演台 : 1
電源タップ : 3
個別空調:なし 電気容量(総A数):15A LAN口数:2 窓:なし 窓開閉可不可: 不可
外受付:可















〒530-0042
大阪府大阪市北区天満橋 1-8-30 OAPタワー 24階
JR大阪環状線 桜ノ宮駅 徒歩10分
JR東西線 大阪天満宮駅 9番出口 徒歩10分 大阪メトロ 南森町駅 3番出口 徒歩10分 東梅田(大阪メトロ 谷町線 東梅田駅上、A-TIME 梅田御堂筋店様前)より無料シャトルバス運行(平日のみ)
ご利用
可能時間
月曜日:08:00〜22:00
火曜日:08:00〜22:00
水曜日:08:00〜22:00
木曜日:08:00〜22:00
金曜日:08:00〜22:00
土曜日:08:00〜22:00
日曜日:08:00〜22:00
※時間外のご利用についてはご相談ください。
株式会社ティーケーピー
本社:〒162-0844 東京都新宿区市谷八幡町8番地 TKP市ヶ谷ビル2階
お問い合わせ:03-4577-9269