TKPガーデンシティ岡山
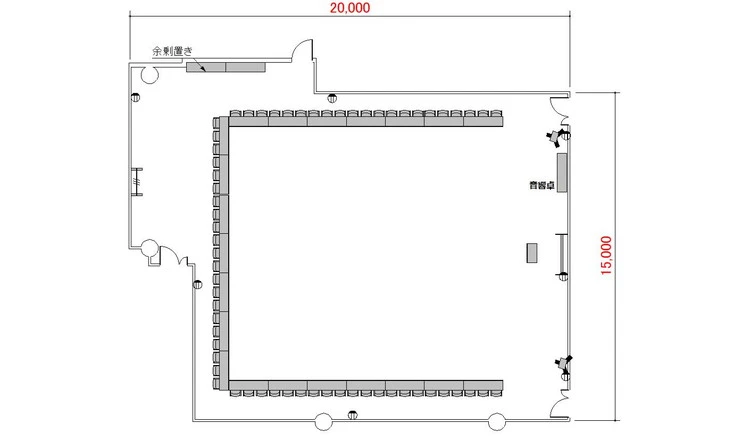
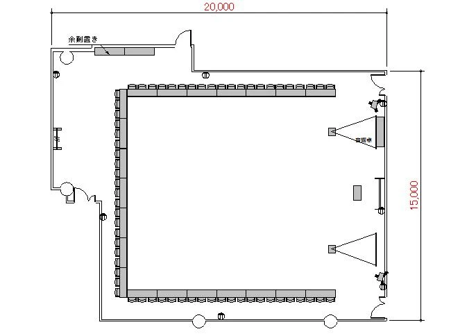
バンケット4A
ホワイトボード : 1
有線マイク : 2
演台 : 1
電源タップ : 5
個別空調:有 電気容量(総A数):45A LAN口数:2 窓:なし 窓開閉可不可: 不可
外受付:可
















〒700-0821
岡山県岡山市北区中山下1-8-45 NTTクレド岡山ビル(※2026年4月1日~GEEKS OKAYAMAに名称が変更となります) 4階(事務所:4階)
JR山陽本線 岡山駅 徒歩15分
岡山電気軌道清輝橋線 郵便局前 目の前 岡電バス NTT岡山前 目の前
ご利用
可能時間
月曜日:07:00〜23:00
火曜日:07:00〜23:00
水曜日:07:00〜23:00
木曜日:07:00〜23:00
金曜日:07:00〜23:00
土曜日:07:00〜23:00
日曜日:07:00〜23:00
※時間外のご利用についてはご相談ください。
株式会社ティーケーピー
本社:〒162-0844 東京都新宿区市谷八幡町8番地 TKP市ヶ谷ビル2階
お問い合わせ:03-4577-9269