TKPガーデンシティ京都タワーホテル
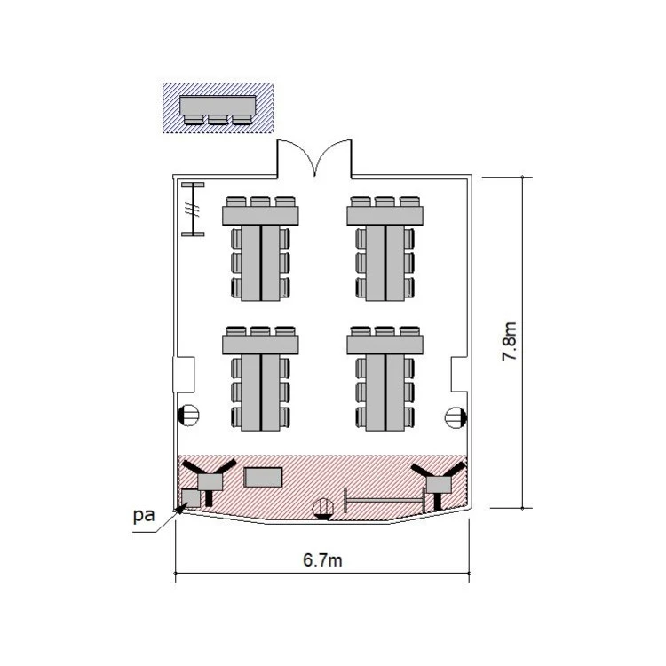
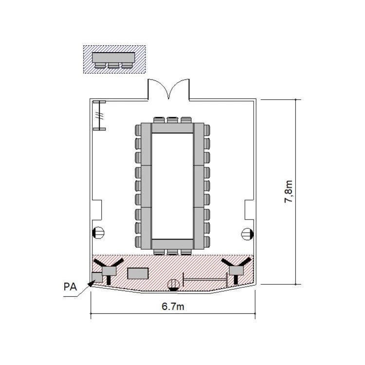
7F:椿
ホワイトボード : 1
演台 : 1
電源タップ : 3
個別空調:有 電気容量(総A数):30A LAN口数:2 窓:なし 窓開閉可不可: 不可
外受付:可



















〒600-8216
京都府京都市下京区烏丸通七条下ル東塩小路町721-1 京都タワーホテル 2階・4階~7階・9階(事務所:7階)
JR線 京都駅 中央口 徒歩2分
近鉄京都線 京都駅 徒歩2分 京都市営烏丸線 京都駅 徒歩2分
ご利用
可能時間
月曜日:07:00〜23:00
火曜日:07:00〜23:00
水曜日:07:00〜23:00
木曜日:07:00〜23:00
金曜日:07:00〜23:00
土曜日:07:00〜23:00
日曜日:07:00〜23:00
※時間外のご利用についてはご相談ください。
株式会社ティーケーピー
本社:〒162-0844 東京都新宿区市谷八幡町8番地 TKP市ヶ谷ビル2階
お問い合わせ:03-4577-9269