TKPガーデンシティ鹿児島中央
霧島プレミアム
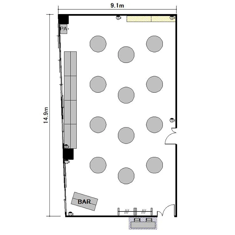
ホワイトボード : 1
演台 : 1
電源タップ : 3
個別空調:有 電気容量(総A数):80A LAN口数:1 窓:有 窓開閉可不可: 可
外受付:可

















〒890-0053
鹿児島県鹿児島市中央町26-1南国アネックスビル 2~3階(事務所:3階)
JR鹿児島本線 鹿児島中央駅 東口 徒歩3分
ご利用
可能時間
月曜日:09:00〜21:00
火曜日:09:00〜21:00
水曜日:09:00〜21:00
木曜日:09:00〜21:00
金曜日:09:00〜21:00
土曜日:09:00〜21:00
日曜日:09:00〜21:00
※時間外のご利用についてはご相談ください。
株式会社ティーケーピー
本社:〒162-0844 東京都新宿区市谷八幡町8番地 TKP市ヶ谷ビル2階
お問い合わせ:03-4577-9269