TKPガーデンシティ広島
アクアマリン
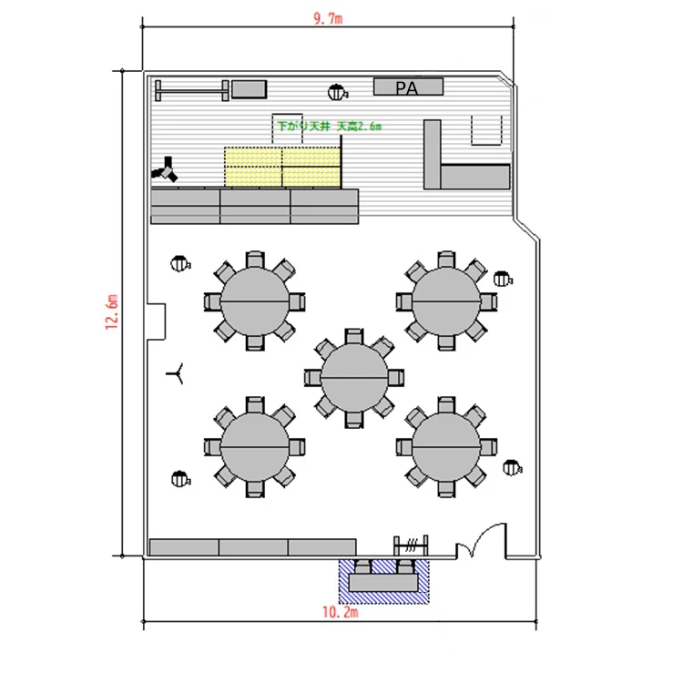
ホワイトボード : 1
演台 : 1
電源タップ : 3
個別空調:有 電気容量(総A数):30A LAN口数:2 窓:なし 窓開閉可不可: 不可
外受付:可


















〒730-0037
広島県広島市中区中町8-18 広島クリスタルプラザ 2~3階(事務所:2階)
広島電鉄宇品線 袋町駅 徒歩3分
ご利用
可能時間
月曜日:07:00〜23:00
火曜日:07:00〜23:00
水曜日:07:00〜23:00
木曜日:07:00〜23:00
金曜日:07:00〜23:00
土曜日:07:00〜23:00
日曜日:07:00〜23:00
※時間外のご利用についてはご相談ください。
株式会社ティーケーピー
本社:〒162-0844 東京都新宿区市谷八幡町8番地 TKP市ヶ谷ビル2階
お問い合わせ:03-4577-9269