TKPガーデンシティ広島駅前大橋
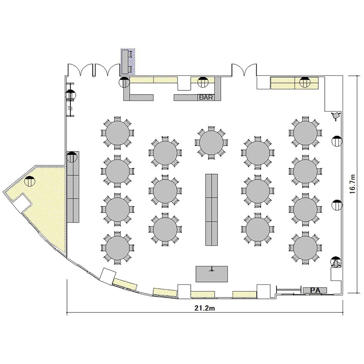
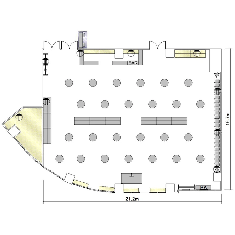
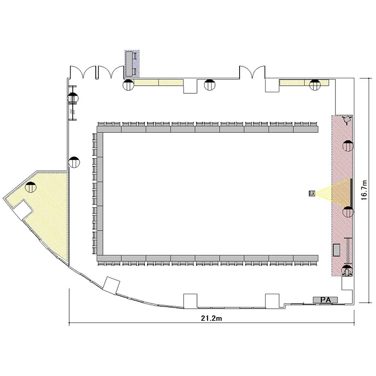
ホール5A
ホワイトボード : 1
有線マイク : 2
演台 : 1
電源タップ : 5
個別空調:有 電気容量(総A数):45A LAN口数:1 窓:有 窓開閉可不可: 可
外受付:可





















〒732-0828
広島県広島市南区京橋町1-7 アスティ広島京橋ビルディング 3~6階(事務所:7階)
JR線 広島駅 中央改札 徒歩5分
広島電鉄2号線 稲荷町駅 徒歩3分 広島電鉄6号線 稲荷町駅 徒歩3分
ご利用
可能時間
月曜日:07:00〜23:00
火曜日:07:00〜23:00
水曜日:07:00〜23:00
木曜日:07:00〜23:00
金曜日:07:00〜23:00
土曜日:07:00〜23:00
日曜日:07:00〜23:00
※時間外のご利用についてはご相談ください。
株式会社ティーケーピー
本社:〒162-0844 東京都新宿区市谷八幡町8番地 TKP市ヶ谷ビル2階
お問い合わせ:03-4577-9269