TKPガーデンシティ浜松町(ベイサイドホテル アジュール竹芝)
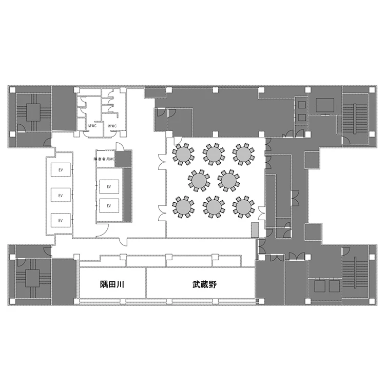
12F 白鳳
個別空調:なし 電気容量(総A数):30A LAN口数:0 窓:なし 窓開閉可不可: 不可
外受付:可











〒105-0022
東京都港区海岸1-11-2 ホテルアジュール竹芝内
JR線 浜松町駅 北口 徒歩7分
ゆりかもめ 竹芝駅 徒歩1分 東京モノレール 浜松町駅 徒歩7分 都営地下鉄 大門駅 B1 徒歩8分
ご利用
可能時間
月曜日:07:00〜23:00
火曜日:07:00〜23:00
水曜日:07:00〜23:00
木曜日:07:00〜23:00
金曜日:07:00〜23:00
土曜日:07:00〜23:00
日曜日:07:00〜23:00
※時間外のご利用についてはご相談ください。
株式会社ティーケーピー
本社:〒162-0844 東京都新宿区市谷八幡町8番地 TKP市ヶ谷ビル2階
お問い合わせ:03-4577-9269