TKPガーデンシティ博多駅筑紫口前
グランデ
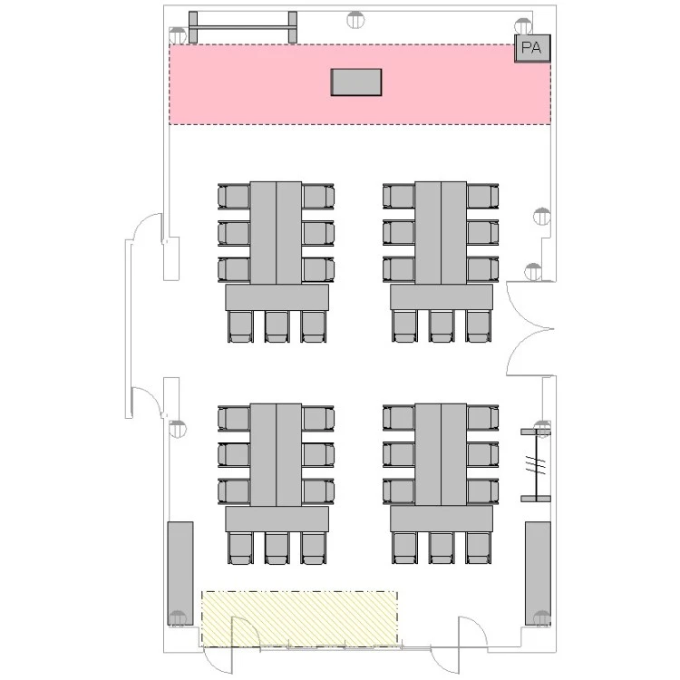
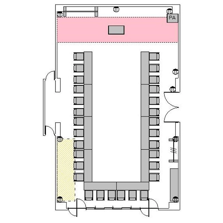
ホワイトボード : 1
演台 : 1
電源タップ : 3
個別空調:有 電気容量(総A数):60A LAN口数:1 窓:有 窓開閉可不可: 可
外受付:不可














〒812-0013
福岡県福岡市博多区博多駅東1-12-3 TKPサンライフホテル 3階(事務所:3階)
福岡市地下鉄空港線 博多駅 6番出口 直結
JR鹿児島本線 博多駅 筑紫口 徒歩2分 福岡空港より地下鉄経由で約6分
ご利用
可能時間
月曜日:07:00〜23:00
火曜日:07:00〜23:00
水曜日:07:00〜23:00
木曜日:07:00〜23:00
金曜日:07:00〜23:00
土曜日:07:00〜23:00
日曜日:07:00〜23:00
※時間外のご利用についてはご相談ください。
株式会社ティーケーピー
本社:〒162-0844 東京都新宿区市谷八幡町8番地 TKP市ヶ谷ビル2階
お問い合わせ:03-4577-9269