味覚糖UHA館TKP浜松町カンファレンスセンター
カンファレンスルーム3C
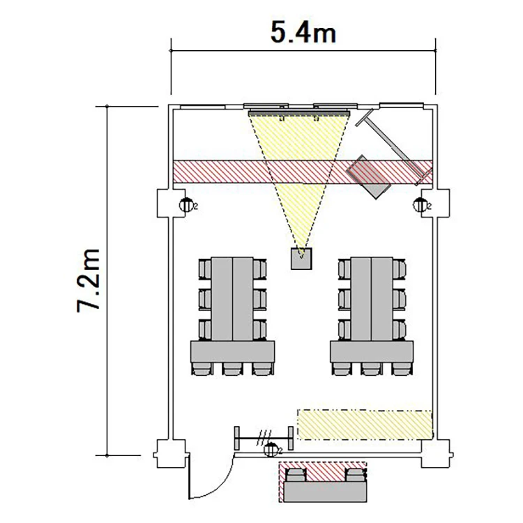
ホワイトボード : 1
演台 : 1
電源タップ : 3
個別空調:有 電気容量(総A数):40A LAN口数:2 窓:有 窓開閉可不可: 可
外受付:可

















〒105-0013
東京都港区浜松町1-26-1 味覚糖UHA館 3~6階(事務所:3階)
JR山手線 浜松町駅 北口 徒歩4分
東京モノレール モノレール浜松町駅 中央口 徒歩5分 都営浅草線 大門駅 A2出口 徒歩2分 都営大江戸線 大門駅 A2出口 徒歩2分
ご利用
可能時間
月曜日:07:00〜23:00
火曜日:07:00〜23:00
水曜日:07:00〜23:00
木曜日:07:00〜23:00
金曜日:07:00〜23:00
土曜日:07:00〜23:00
日曜日:07:00〜23:00
※時間外のご利用についてはご相談ください。
株式会社ティーケーピー
本社:〒162-0844 東京都新宿区市谷八幡町8番地 TKP市ヶ谷ビル2階
お問い合わせ:03-4577-9269