TKP虎ノ門カンファレンスセンター
カンファレンスルーム2C
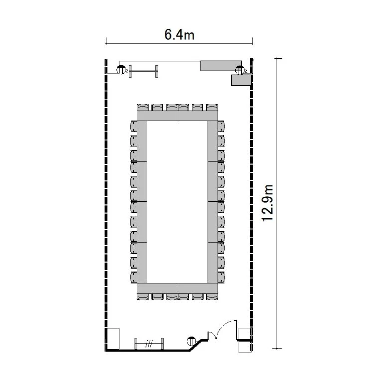
ホワイトボード : 1
演台 : 1
電源タップ : 3
窓:あり
外受付:可

















〒105-0003
東京都港区西新橋1-24-14西新橋1丁目ビル(事務所2階)
銀座線 虎ノ門駅 B6番出口 徒歩3分
都営三田線 内幸町駅 A3出口 徒歩5分 JR線 新橋駅 徒歩8分 銀座線 虎ノ門ヒルズ駅 徒歩8分
ご利用
可能時間
月曜日:07:00〜23:00
火曜日:07:00〜23:00
水曜日:07:00〜23:00
木曜日:07:00〜23:00
金曜日:07:00〜23:00
土曜日:07:00〜23:00
日曜日:07:00〜23:00
※時間外のご利用についてはご相談ください。
株式会社ティーケーピー
本社:〒162-0844 東京都新宿区市谷八幡町8番地 TKP市ヶ谷ビル2階
お問い合わせ:03-4577-9269