TKP東京駅カンファレンスセンター
カンファレンスルーム12B
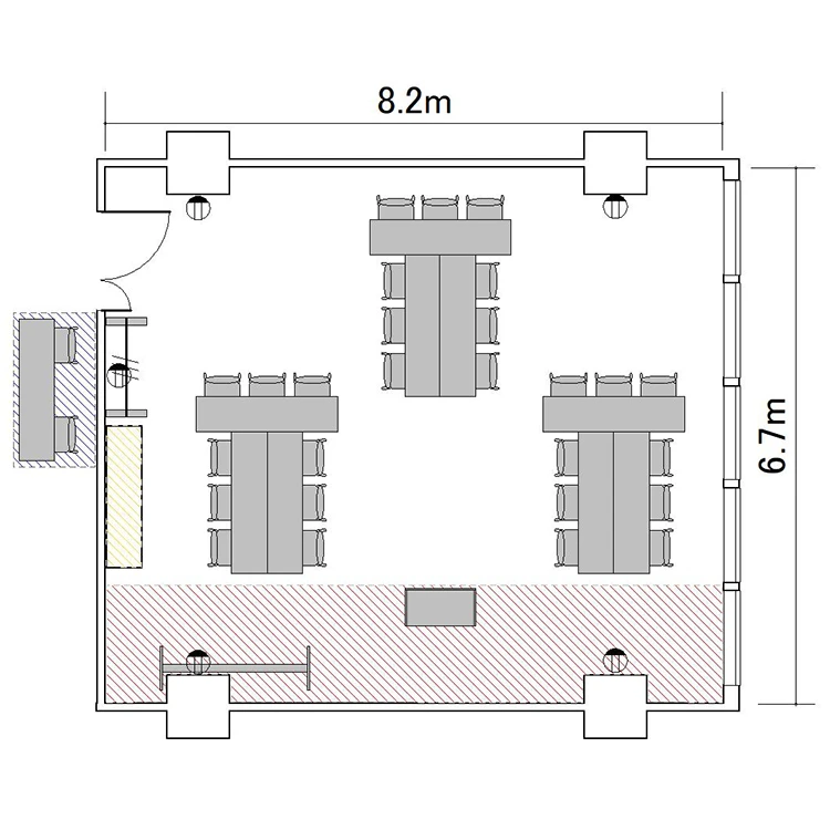
ホワイトボード : 1
演台 : 1
電源タップ : 3
個別空調:有 電気容量(総A数):30A LAN口数:2 窓:有 窓開閉可不可: 可
外受付:不可






















〒103-0028
東京都中央区八重洲1-8-16 新槇町ビル 1~3階・8階・10~12階(事務所:11階)
JR線 東京駅 八重洲中央口 徒歩1分
東京メトロ丸ノ内線 東京駅 自由通路経由 徒歩7分
ご利用
可能時間
月曜日:07:00〜23:00
火曜日:07:00〜23:00
水曜日:07:00〜23:00
木曜日:07:00〜23:00
金曜日:07:00〜23:00
土曜日:07:00〜23:00
日曜日:07:00〜23:00
※時間外のご利用についてはご相談ください。
株式会社ティーケーピー
本社:〒162-0844 東京都新宿区市谷八幡町8番地 TKP市ヶ谷ビル2階
お問い合わせ:03-4577-9269