TKP東京駅大手町カンファレンスセンター
ホール22E
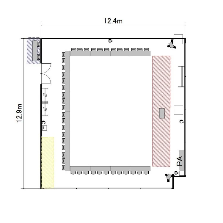
ホワイトボード : 1
有線マイク : 2
演台 : 1
高速無料Wi-Fi : 1
電源タップ : 5
個別空調:なし 電気容量(総A数):45A LAN口数:4 窓:有 窓開閉可不可: 不可
外受付:可
















〒100-0004
東京都千代田区大手町1-8-1 KDDI大手町ビル 22階(事務所:22階)
東京メトロ、都営地下鉄「大手町」駅 C1出口直通
東京メトロ丸の内線「大手町」駅 A1出口 徒歩1分 JR東京駅 丸の内北口 徒歩10分
ご利用
可能時間
月曜日:07:30〜23:00
火曜日:07:30〜23:00
水曜日:07:30〜23:00
木曜日:07:30〜23:00
金曜日:07:30〜23:00
土曜日:07:30〜23:00
日曜日:07:30〜23:00
※時間外のご利用についてはご相談ください。
株式会社ティーケーピー
本社:〒162-0844 東京都新宿区市谷八幡町8番地 TKP市ヶ谷ビル2階
お問い合わせ:03-4577-9269