TKP田町カンファレンスセンター
カンファレンスルームB1B
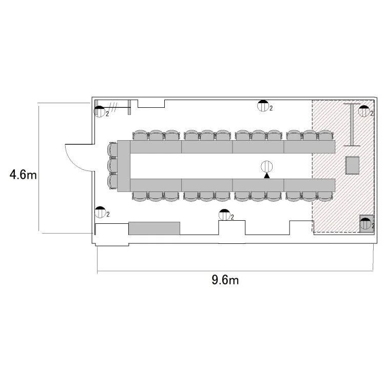
ホワイトボード : 1
演台 : 1
電源タップ : 3
個別空調:有 電気容量(総A数):40A LAN口数:1 窓:なし 窓開閉可不可: 不可
外受付:不可
















〒108-0014
東京都港区芝5-29-14 田町日工ビル B1階・2階(事務所:2階)
JR線 田町駅 三田口(西口) 徒歩5分
都営地下鉄 三田駅 A3出口 徒歩4分
ご利用
可能時間
月曜日:07:00〜23:00
火曜日:07:00〜23:00
水曜日:07:00〜23:00
木曜日:07:00〜23:00
金曜日:07:00〜23:00
土曜日:07:00〜23:00
日曜日:07:00〜23:00
※時間外のご利用についてはご相談ください。
株式会社ティーケーピー
本社:〒162-0844 東京都新宿区市谷八幡町8番地 TKP市ヶ谷ビル2階
お問い合わせ:03-4577-9269