TKP新横浜カンファレンスセンター
カンファレンスルーム5D
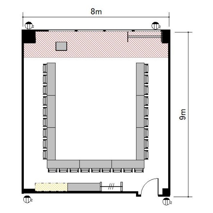
演台 : 1
電源タップ : 3
個別空調:有 電気容量(総A数):60A LAN口数:2 窓:有 窓開閉可不可: 可
外受付:不可
















〒222-0033
神奈川県横浜市港北区新横浜2-4-19 相鉄新横浜ビル 5階(旧:富士火災横浜ビル)(事務所:5階)
横浜市営地下鉄ブルーライン 新横浜駅 9番出口 徒歩1分
JR横浜線 新横浜駅 北口改札 徒歩3分
ご利用
可能時間
月曜日:07:00〜23:00
火曜日:07:00〜23:00
水曜日:07:00〜23:00
木曜日:07:00〜23:00
金曜日:07:00〜23:00
土曜日:07:00〜23:00
日曜日:07:00〜23:00
※時間外のご利用についてはご相談ください。
株式会社ティーケーピー
本社:〒162-0844 東京都新宿区市谷八幡町8番地 TKP市ヶ谷ビル2階
お問い合わせ:03-4577-9269