TKP新大阪カンファレンスセンター
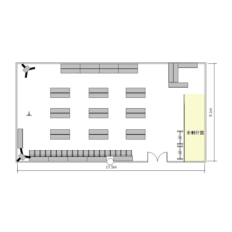
ホール4A
ホワイトボード : 1
有線マイク : 2
演台 : 1
電源タップ : 5
個別空調:なし 電気容量(総A数):60A LAN口数:4 窓:有 窓開閉可不可: 可
外受付:不可

















〒532-0003
大阪府大阪市淀川区宮原4-3-39 新大阪NKビル 4~5階(事務所:4階)
JR東海道本線 新大阪駅 北口 徒歩6分
大阪メトロ御堂筋線 新大阪駅 4番出口 徒歩5分
ご利用
可能時間
月曜日:07:30〜23:00
火曜日:07:30〜23:00
水曜日:07:30〜23:00
木曜日:07:30〜23:00
金曜日:07:30〜23:00
土曜日:07:30〜23:00
日曜日:07:30〜23:00
※時間外のご利用についてはご相談ください。
株式会社ティーケーピー
本社:〒162-0844 東京都新宿区市谷八幡町8番地 TKP市ヶ谷ビル2階
お問い合わせ:03-4577-9269