TKP新宿西口カンファレンスセンター
カンファレンスルーム8F
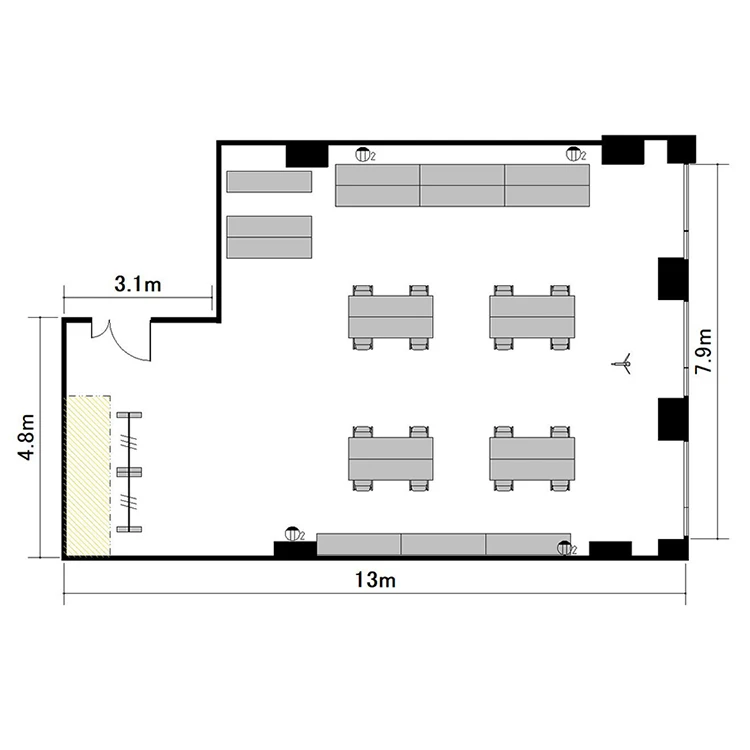
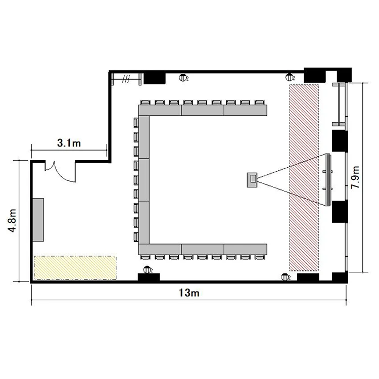
ホワイトボード : 1
演台 : 1
高速無料Wi-Fi : 1
電源タップ : 3
個別空調:有 電気容量(総A数):40A LAN口数:4 窓:有 窓開閉可不可: 可
外受付:不可

















〒160-0023
東京都新宿区西新宿1-10-1 ヨドバシ新宿西口駅前ビル(旧称:MY新宿第二ビル) 8~9階(事務所:9階)
JR線 新宿駅 7番出口 徒歩1分
京王線 新宿駅 徒歩2分 小田急線 新宿駅 徒歩2分 東京メトロ丸ノ内線 新宿駅 徒歩3分
ご利用
可能時間
月曜日:07:00〜23:00
火曜日:07:00〜23:00
水曜日:07:00〜23:00
木曜日:07:00〜23:00
金曜日:07:00〜23:00
土曜日:07:00〜23:00
日曜日:07:00〜23:00
※時間外のご利用についてはご相談ください。
株式会社ティーケーピー
本社:〒162-0844 東京都新宿区市谷八幡町8番地 TKP市ヶ谷ビル2階
お問い合わせ:03-4577-9269