TKP品川カンファレンスセンター
カンファレンスルーム6B
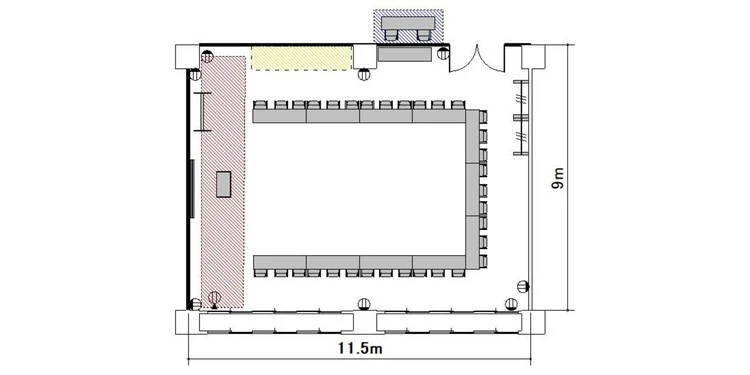
ホワイトボード : 1
演台 : 1
電源タップ : 3
個別空調:有 電気容量(総A数):60A LAN口数:4 窓:有 窓開閉可不可: 可
外受付:可




















〒108-0074
東京都港区高輪3-25-23 京急第2ビル 6~7階・9~10階(事務所:9階)
JR線 品川駅 高輪口 徒歩3分
京急本線 品川駅 高輪口 徒歩3分 JR山手線 五反田駅 バスで約23分 JR山手線 目黒駅 バスで約23分
ご利用
可能時間
月曜日:07:00〜23:00
火曜日:07:00〜23:00
水曜日:07:00〜23:00
木曜日:07:00〜23:00
金曜日:07:00〜23:00
土曜日:07:00〜23:00
日曜日:07:00〜23:00
※時間外のご利用についてはご相談ください。
株式会社ティーケーピー
本社:〒162-0844 東京都新宿区市谷八幡町8番地 TKP市ヶ谷ビル2階
お問い合わせ:03-4577-9269