TKP新橋カンファレンスセンター
ホール14C
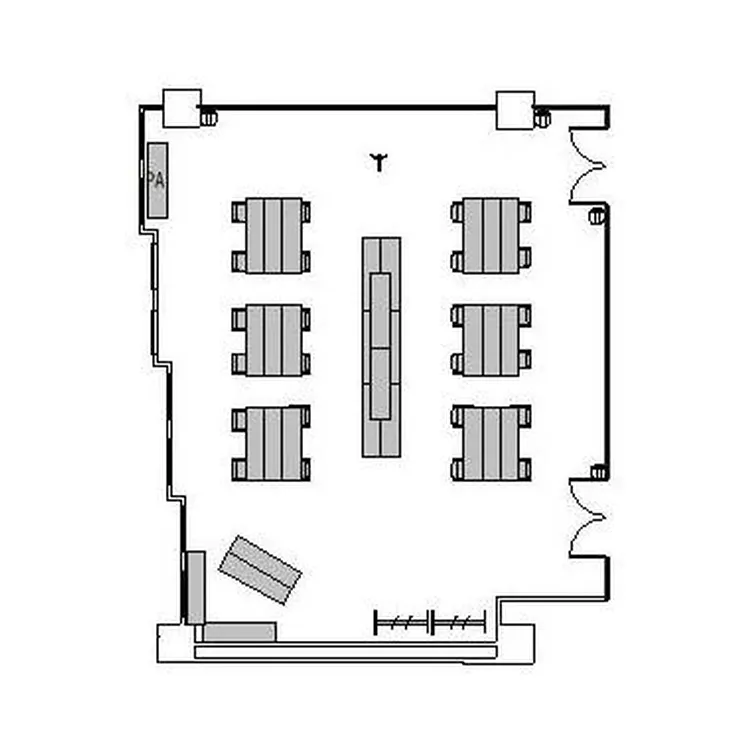
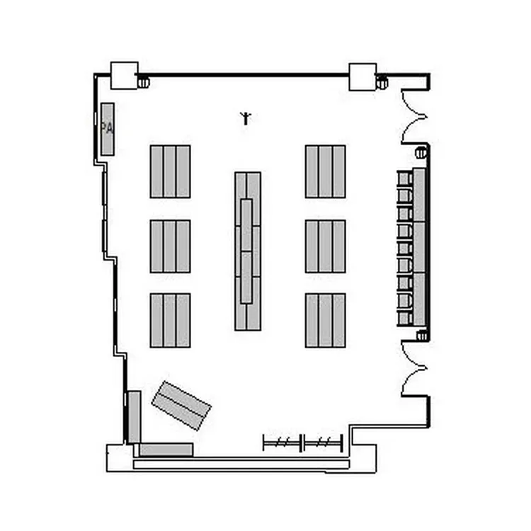
ホワイトボード : 1
有線マイク : 2
演台 : 1
電源タップ : 5
個別空調:有 電気容量(総A数):60A LAN口数:2 窓:有 窓開閉可不可: 不可
外受付:可























〒100-0011
東京都千代田区内幸町1-3-1 幸ビルディング 10〜16階(事務所:12階)
都営三田線 内幸町駅 A5出口 徒歩1分
JR線 新橋駅 日比谷口 徒歩7分 東京メトロ銀座線 新橋駅 7番出口 徒歩7分 都営浅草線 新橋駅 7番出口 徒歩7分 東京メトロ 霞ケ関駅 C4 徒歩8分
ご利用
可能時間
月曜日:08:00〜20:00
火曜日:08:00〜20:00
水曜日:08:00〜20:00
木曜日:08:00〜20:00
金曜日:08:00〜20:00
土曜日:08:00〜20:00
日曜日:08:00〜20:00
※時間外のご利用についてはご相談ください。
株式会社ティーケーピー
本社:〒162-0844 東京都新宿区市谷八幡町8番地 TKP市ヶ谷ビル2階
お問い合わせ:03-4577-9269