TKP仙台青葉通カンファレンスセンター
カンファレンスルーム7A
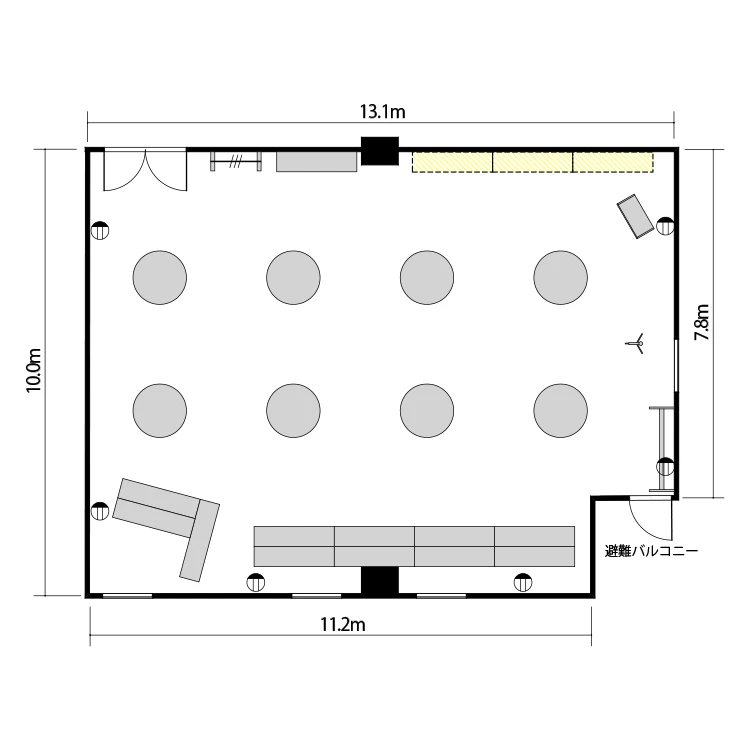
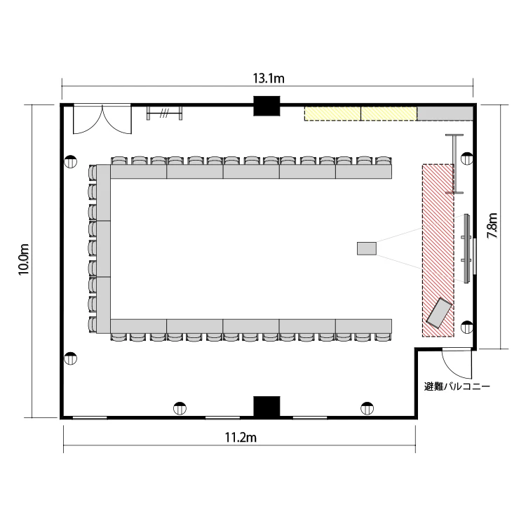
ホワイトボード : 1
演台 : 1
電源タップ : 3
個別空調:有 電気容量(総A数):60A LAN口数:2 窓:有 窓開閉可不可: 不可
外受付:可

















〒980-0811
宮城県仙台市青葉区一番町2-4-1 青葉通パークビルディング 7~8階(事務所:7階)
仙台市営東西線 青葉通一番町駅 徒歩1分
JR仙石線 あおば通駅 徒歩6分 JR東北本線 仙台駅 徒歩8分
ご利用
可能時間
月曜日:07:00〜23:00
火曜日:07:00〜23:00
水曜日:07:00〜23:00
木曜日:07:00〜23:00
金曜日:07:00〜23:00
土曜日:07:00〜23:00
日曜日:07:00〜23:00
※時間外のご利用についてはご相談ください。
株式会社ティーケーピー
本社:〒162-0844 東京都新宿区市谷八幡町8番地 TKP市ヶ谷ビル2階
お問い合わせ:03-4577-9269