TKP札幌カンファレンスセンター北3条
(旧施設名: TKP札幌カンファレンスセンター)
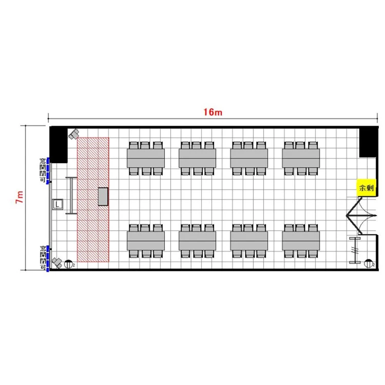
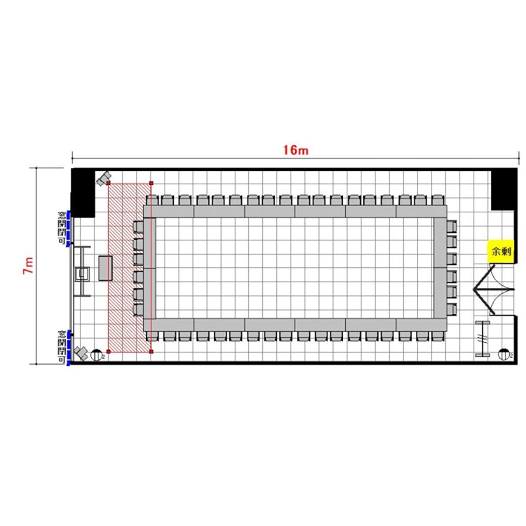
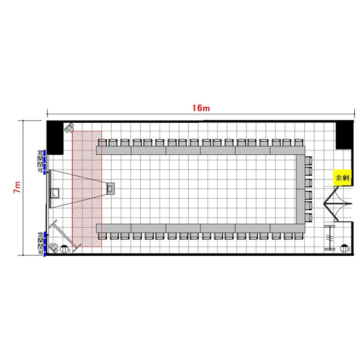
カンファレンスルーム6B
ホワイトボード : 1
演台 : 1
電源タップ : 3
個別空調:有 電気容量(総A数):40A LAN口数:1 窓:有 窓開閉可不可: 可
外受付:不可















〒060-0003
北海道札幌市中央区北3条西3-1-6 札幌小暮ビル 6~7階(事務所:7階)
札幌市営南北線 さっぽろ駅地下歩行空間1番出口 徒歩1分
札幌市営南北線 さっぽろ駅 9番出口 徒歩4分 JR函館本線 札幌駅 南口 徒歩5分
ご利用
可能時間
月曜日:07:00〜23:00
火曜日:07:00〜23:00
水曜日:07:00〜23:00
木曜日:07:00〜23:00
金曜日:07:00〜23:00
土曜日:07:00〜23:00
日曜日:07:00〜23:00
※時間外のご利用についてはご相談ください。
株式会社ティーケーピー
本社:〒162-0844 東京都新宿区市谷八幡町8番地 TKP市ヶ谷ビル2階
お問い合わせ:03-4577-9269