TKP札幌ホワイトビルカンファレンスセンター
ミーティングルーム2A
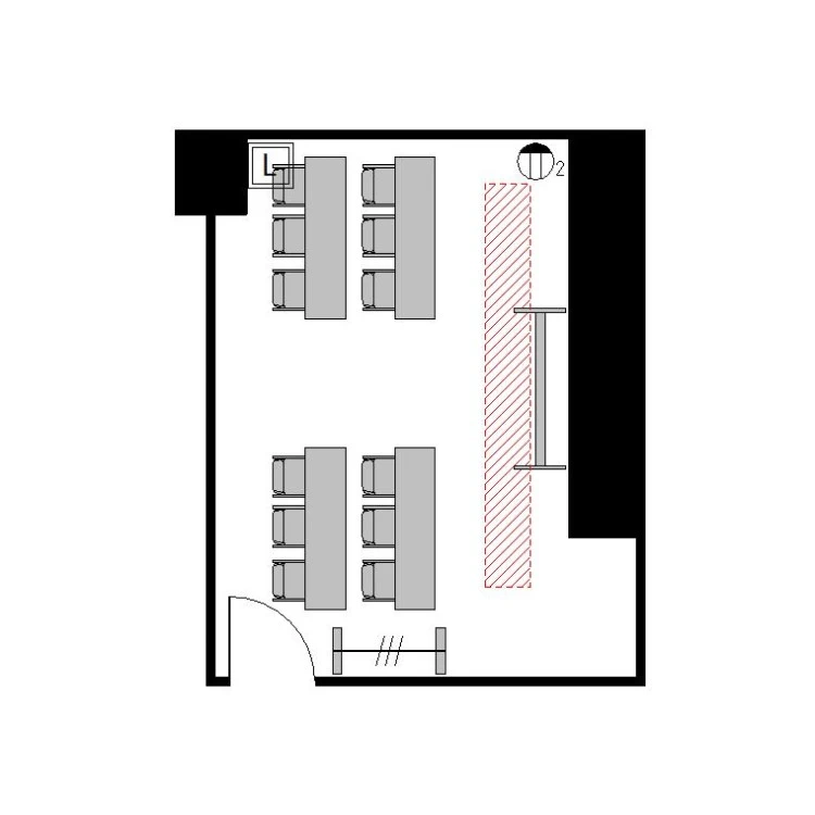
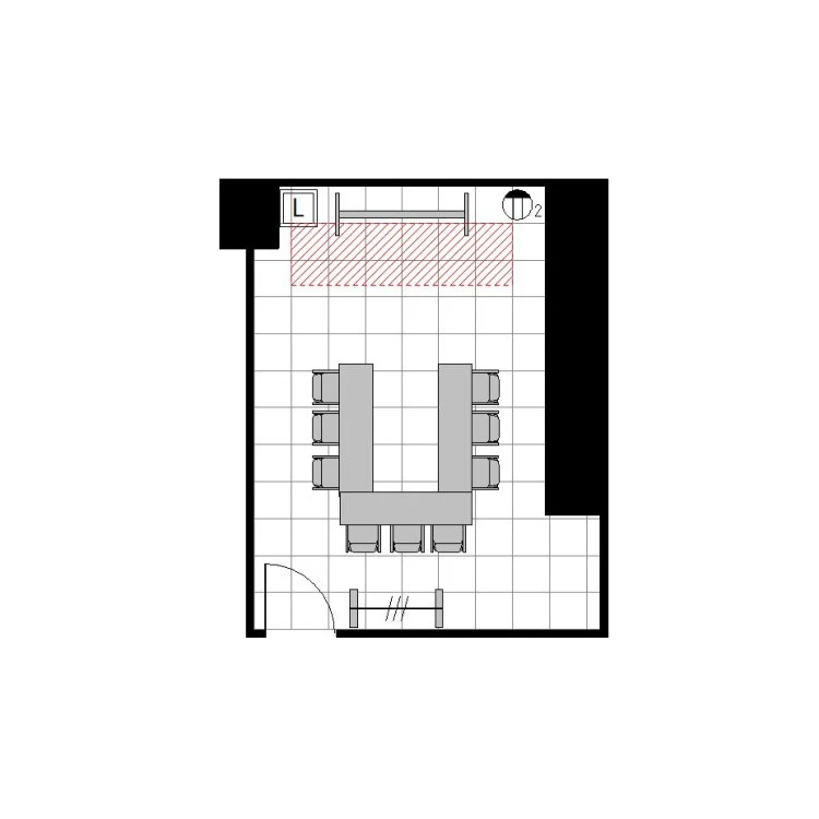
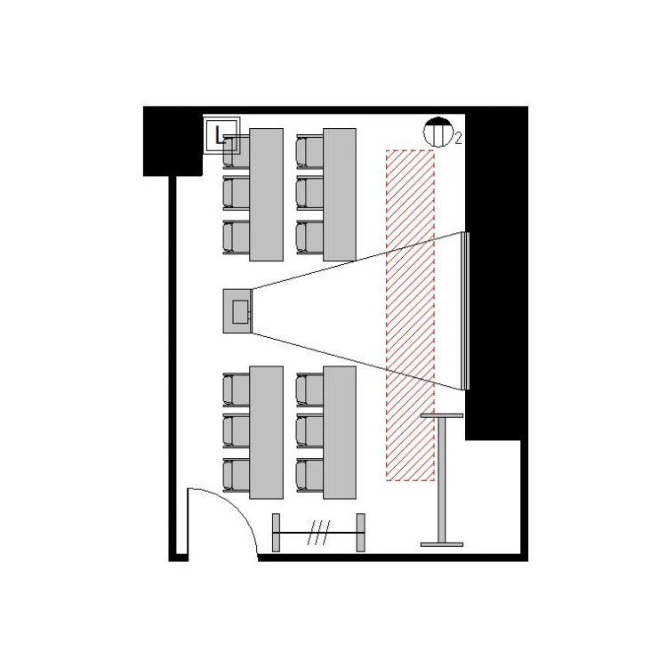
ホワイトボード : 1
電源タップ : 2
個別空調:有 電気容量(総A数):20A LAN口数:1 窓:有 窓開閉可不可: 可
外受付:可
















〒060-0004
北海道札幌市中央区北4条西7-1-5 札幌ホワイトビル 2階・4階・6階(事務所:6階)
JR函館本線 札幌駅南口 徒歩5分
札幌市営地下鉄 さっぽろ駅 徒歩5分
ご利用
可能時間
月曜日:07:00〜23:00
火曜日:07:00〜23:00
水曜日:07:00〜23:00
木曜日:07:00〜23:00
金曜日:07:00〜23:00
土曜日:07:00〜23:00
日曜日:07:00〜23:00
※時間外のご利用についてはご相談ください。
株式会社ティーケーピー
本社:〒162-0844 東京都新宿区市谷八幡町8番地 TKP市ヶ谷ビル2階
お問い合わせ:03-4577-9269