TKP札幌北口カンファレンスセンター
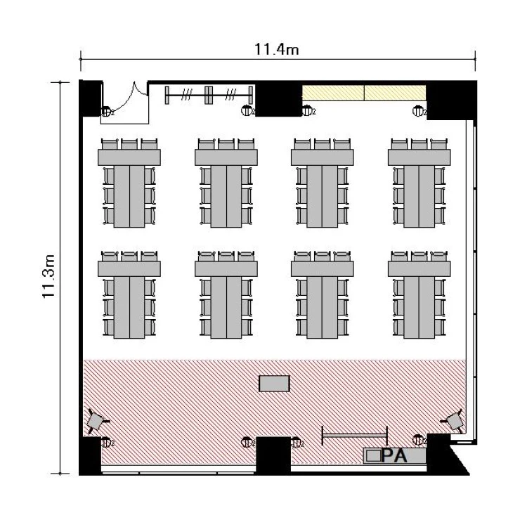
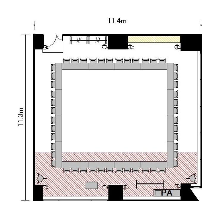
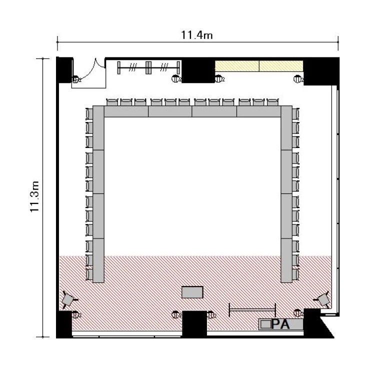
カンファレンスルーム2C
ホワイトボード : 1
演台 : 1
電源タップ : 3
個別空調:有 電気容量(総A数):40A LAN口数:4 窓:有 窓開閉可不可: 可
外受付:不可
















〒060-0807
北海道札幌市北区北七条西4-17-1 KDX札幌北口ビル 1~2階・6階(事務所:1階)
JR函館本線 札幌駅 西コンコース北口 徒歩3分
札幌市営地下鉄 さっぽろ駅 出入口8 徒歩2分
ご利用
可能時間
月曜日:07:00〜23:00
火曜日:07:00〜23:00
水曜日:07:00〜23:00
木曜日:07:00〜23:00
金曜日:07:00〜23:00
土曜日:07:00〜23:00
日曜日:07:00〜23:00
※時間外のご利用についてはご相談ください。
株式会社ティーケーピー
本社:〒162-0844 東京都新宿区市谷八幡町8番地 TKP市ヶ谷ビル2階
お問い合わせ:03-4577-9269