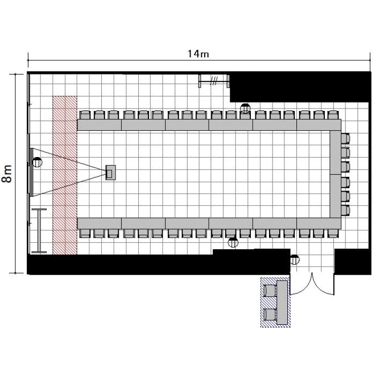
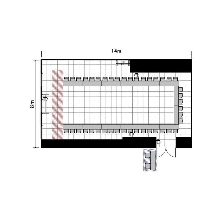
TKP札幌駅カンファレンスセンター
カンファレンスルーム2A
ホワイトボード : 1
演台 : 1
電源タップ : 3
個別空調:有 電気容量(総A数):40A LAN口数:1 窓:有 窓開閉可不可: 可
外受付:可


















〒060-0807
北海道札幌市北区北7条西2-9 ベルヴュオフィス札幌 2~3階(事務所:3階)
JR函館本線 札幌駅北口 徒歩2分
札幌市営地下鉄 さっぽろ駅 16番出口 徒歩1分
ご利用
可能時間
月曜日:07:00〜23:00
火曜日:07:00〜23:00
水曜日:07:00〜23:00
木曜日:07:00〜23:00
金曜日:07:00〜23:00
土曜日:07:00〜23:00
日曜日:07:00〜23:00
※時間外のご利用についてはご相談ください。
株式会社ティーケーピー
本社:〒162-0844 東京都新宿区市谷八幡町8番地 TKP市ヶ谷ビル2階
お問い合わせ:03-4577-9269