TKP大阪淀屋橋カンファレンスセンター
カンファレンスルームB
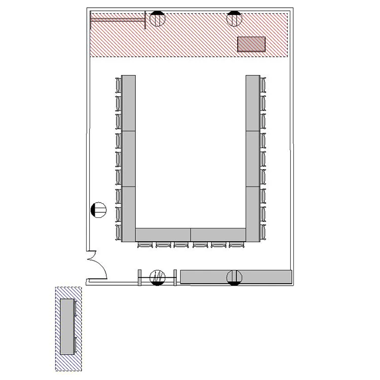
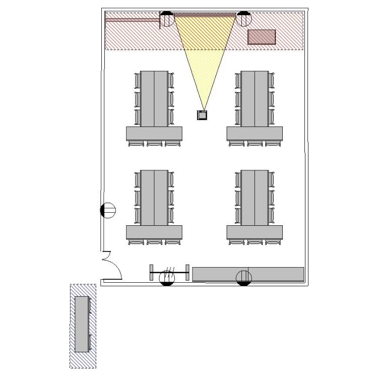
ホワイトボード : 1
演台 : 1
高速無料Wi-Fi : 1
電源タップ : 3
個別空調:有 電気容量(総A数):45A LAN口数:1 窓:なし 窓開閉可不可: 不可
外受付:可

















〒530-0005
大阪府大阪市北区中之島2-2-2 大阪中之島ビル(旧ニチメンビル) B1階(事務所:B1階)
大阪メトロ御堂筋線 淀屋橋駅 7番出口 徒歩5分
大阪メトロ四つ橋線 肥後橋駅 出口1-A 徒歩5分 京阪中之島線 大江橋駅 1番出口 徒歩5分
ご利用
可能時間
月曜日:08:00〜22:00
火曜日:08:00〜22:00
水曜日:08:00〜22:00
木曜日:08:00〜22:00
金曜日:08:00〜22:00
土曜日:08:00〜22:00
日曜日:08:00〜22:00
※時間外のご利用についてはご相談ください。
株式会社ティーケーピー
本社:〒162-0844 東京都新宿区市谷八幡町8番地 TKP市ヶ谷ビル2階
お問い合わせ:03-4577-9269