TKP大阪梅田カンファレンスセンター
カンファレンスルーム9B
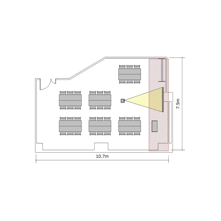
ホワイトボード : 1
演台 : 1
電源タップ : 3
個別空調:なし 電気容量(総A数):45A LAN口数:4 窓:有 窓開閉可不可: 不可
外受付:不可















〒530-0017
大阪府大阪市北区角田町1-12 阪急ファイブアネックス 9〜11階(事務所:9階)
大阪メトロ谷町線 東梅田駅 H30出口 徒歩2分
阪急京都線 大阪梅田駅 徒歩3分 JR東海道本線 大阪駅 御堂筋南口 徒歩6分
ご利用
可能時間
月曜日:07:00〜23:00
火曜日:07:00〜23:00
水曜日:07:00〜23:00
木曜日:07:00〜23:00
金曜日:07:00〜23:00
土曜日:07:00〜23:00
日曜日:07:00〜23:00
※時間外のご利用についてはご相談ください。
株式会社ティーケーピー
本社:〒162-0844 東京都新宿区市谷八幡町8番地 TKP市ヶ谷ビル2階
お問い合わせ:03-4577-9269