TKP大阪御堂筋カンファレンスセンター
カンファレンスルーム6A
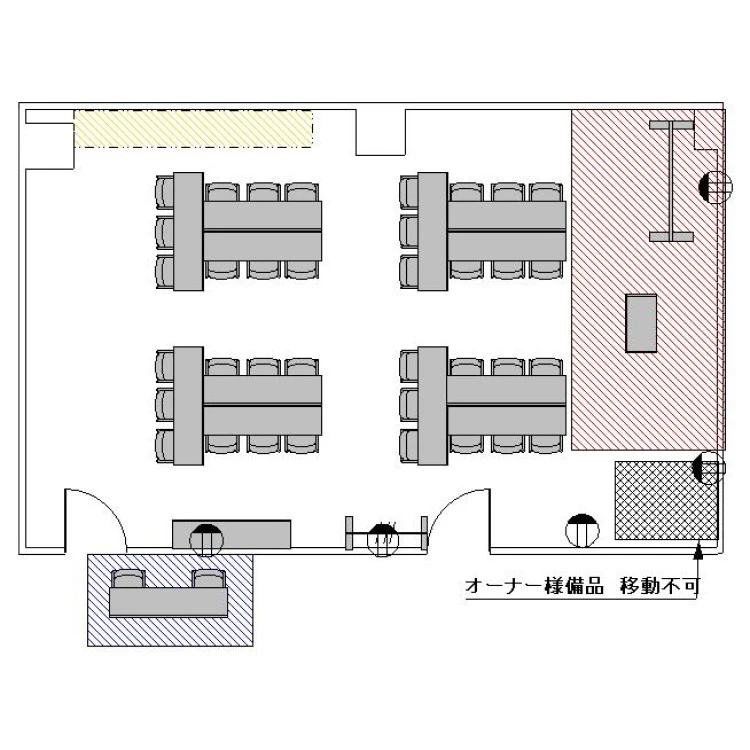
ホワイトボード : 1
演台 : 1
電源タップ : 3
個別空調:有 電気容量(総A数):30A LAN口数:1 窓:有 窓開閉可不可: 可
外受付:可
















〒541-0047
大阪府大阪市中央区淡路町3-5-13 創建御堂筋ビル 6階・8階(事務所:6階)
大阪メトロ御堂筋線 淀屋橋駅 11番出口 徒歩3分
大阪メトロ御堂筋線 本町駅 2番出口 徒歩4分
ご利用
可能時間
月曜日:07:00〜23:00
火曜日:07:00〜23:00
水曜日:07:00〜23:00
木曜日:07:00〜23:00
金曜日:07:00〜23:00
土曜日:07:00〜23:00
日曜日:07:00〜23:00
※時間外のご利用についてはご相談ください。
株式会社ティーケーピー
本社:〒162-0844 東京都新宿区市谷八幡町8番地 TKP市ヶ谷ビル2階
お問い合わせ:03-4577-9269