TKP大阪京橋カンファレンスセンター
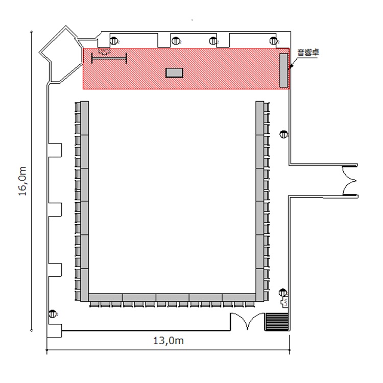
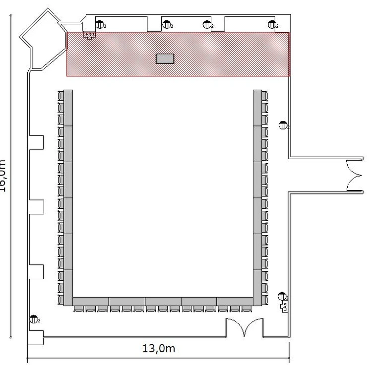
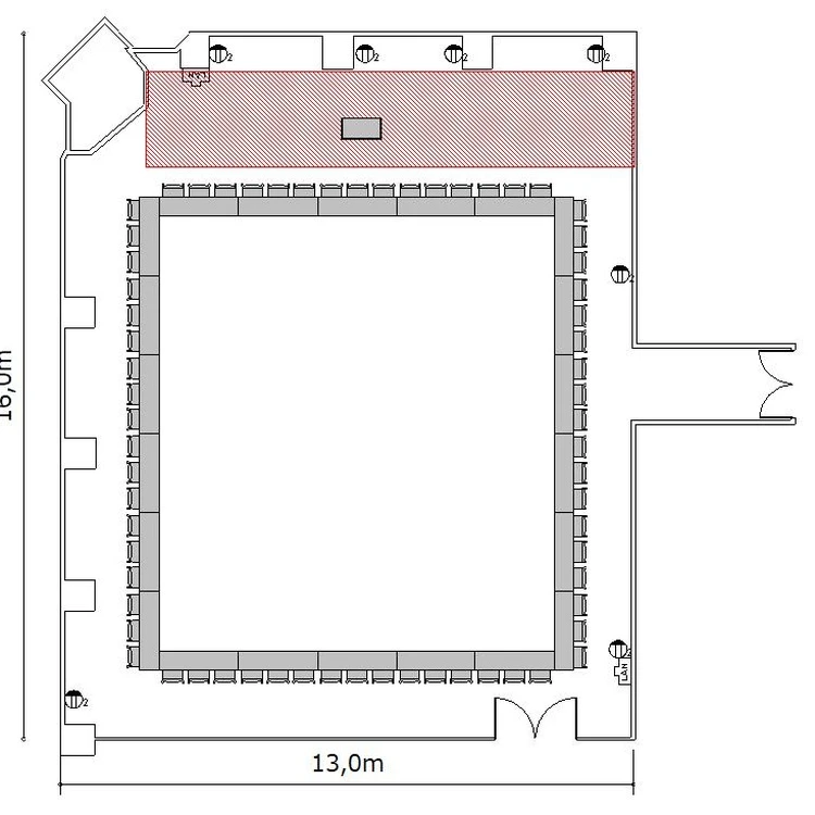
ホール20A
ホワイトボード : 1
有線マイク : 2
演台 : 1
電源タップ : 5
個別空調:無 電気容量(総A数):75A LAN口数:4 窓:有 窓開閉可不可: 不可
外受付:可

















〒540-6129
大阪府大阪市中央区城見2丁目1番61号 ツイン21MIDタワー20階・29階(事務所29階)
JR大阪環状線 京橋駅 西口改札 徒歩5分
京阪本線 京橋駅 片町口改札 徒歩5分 JR東西線 京橋駅西口改札 徒歩5分 大阪メトロ長堀鶴見緑地線 大阪ビジネスパーク 4番出口 徒歩1分
ご利用
可能時間
月曜日:07:00〜23:00
火曜日:07:00〜23:00
水曜日:07:00〜23:00
木曜日:07:00〜23:00
金曜日:07:00〜23:00
土曜日:07:00〜23:00
日曜日:07:00〜23:00
※時間外のご利用についてはご相談ください。
株式会社ティーケーピー
本社:〒162-0844 東京都新宿区市谷八幡町8番地 TKP市ヶ谷ビル2階
お問い合わせ:03-4577-9269