TKP大宮駅西口カンファレンスセンター
ホール6A
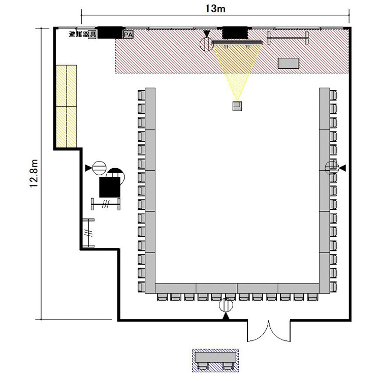
ホワイトボード : 1
有線マイク : 2
演台 : 1
電源タップ : 5
個別空調:有 電気容量(総A数):45A LAN口数:2 窓:有 窓開閉可不可: 不可
外受付:可

















〒330-0854
埼玉県さいたま市大宮区桜木町1-8-1 ベルヴュオフィス大宮 5~6階(事務所:5階)
JR埼京線 大宮駅 西口 徒歩2分
JR線 大宮駅 西口 徒歩2分 埼玉新都市交通 大宮駅 西口 徒歩2分 東武野田線 大宮駅 西口 徒歩2分
ご利用
可能時間
月曜日:07:00〜23:00
火曜日:07:00〜23:00
水曜日:07:00〜23:00
木曜日:07:00〜23:00
金曜日:07:00〜23:00
土曜日:07:00〜23:00
日曜日:07:00〜23:00
※時間外のご利用についてはご相談ください。
株式会社ティーケーピー
本社:〒162-0844 東京都新宿区市谷八幡町8番地 TKP市ヶ谷ビル2階
お問い合わせ:03-4577-9269